第2回 楊瑞禎建築師紀念設計獎 參加作品編號 034
作品名稱:桃花源
設計者:柯采妤
系所:台北科技大學建築系四年級
作品時間:2023/9/11-2023/11/4
指導老師:黃宏裕
題目及基地概要
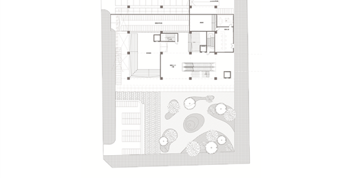
桃花源的故事講述的是人們在意料之外發現一個不顯眼的入口,因而發現充滿祥和和悠閒的桃花源。本設計將四面圍起來,透過不同"面"的表現關係,呼應對基地的觀察:捷運站旁總是充滿著人和紛擾,而公園和後方住宅區的悠閒卻沒有被發現實在可惜,於是先是以"阻隔但不完全隔絕,而是保持點距離"的策略面對外界的紛擾,於是在面對捷運站以及大馬路的入口以一片版一分為二並前後隔開的方式表現概念,同時在側邊留下適合“探頭”的洞口(配置電梯),希望隔開的動作不呆板。
在面對公園面運用像是掀起裙擺的大牆設計,在距離地面留兩公尺高度的開口,隱晦的吸引人群,當人們跟著裙襬進入本棟建築後,先見到的是為里民打造的活動廣場,再來是挑高的入口大廳,在剖面圖可清楚地看到入口大廳上方像是這棟建築的呼吸道,是這棟建築與外界"保持距離"的連接口,為本棟建築帶來流動感。
配置上根據基地分析所畫出的象限圖,簡單的分為捷運入口以及里民服務盒(垂直動線所在),(以下皆以坐向北朝上來看)捷運相關入口位右下角,手扶梯或樓梯上去以後可看到食物攤位空間以及冥想圖書館區,並在三樓設有與捷運的連接通道。其中於三樓捷運出口處往上方走連接左上方的里民服務盒為廊道,提供捷運站的人們方便連接托兒以及托老的服務機構。
里民服務盒(垂直動線),則是位在左上角,除一樓里民辦公室與垂直動線本身無關因為考慮需連接大馬路方便與外界溝通為由設置,從二樓到五樓分別設置托兒中心、托老中心、桌球場和觀景台、健身房等設施。提供里民基礎的服務以及舒適的運動空間。
作品名稱:桃花源
設計者:柯采妤
系所:台北科技大學建築系四年級
作品時間:2023/9/11-2023/11/4
指導老師:黃宏裕
題目及基地概要
桃花源的故事講述的是人們在意料之外發現一個不顯眼的入口,因而發現充滿祥和和悠閒的桃花源。本設計將四面圍起來,透過不同"面"的表現關係,呼應對基地的觀察:捷運站旁總是充滿著人和紛擾,而公園和後方住宅區的悠閒卻沒有被發現實在可惜,於是先是以"阻隔但不完全隔絕,而是保持點距離"的策略面對外界的紛擾,於是在面對捷運站以及大馬路的入口以一片版一分為二並前後隔開的方式表現概念,同時在側邊留下適合“探頭”的洞口(配置電梯),希望隔開的動作不呆板。
在面對公園面運用像是掀起裙擺的大牆設計,在距離地面留兩公尺高度的開口,隱晦的吸引人群,當人們跟著裙襬進入本棟建築後,先見到的是為里民打造的活動廣場,再來是挑高的入口大廳,在剖面圖可清楚地看到入口大廳上方像是這棟建築的呼吸道,是這棟建築與外界"保持距離"的連接口,為本棟建築帶來流動感。
配置上根據基地分析所畫出的象限圖,簡單的分為捷運入口以及里民服務盒(垂直動線所在),(以下皆以坐向北朝上來看)捷運相關入口位右下角,手扶梯或樓梯上去以後可看到食物攤位空間以及冥想圖書館區,並在三樓設有與捷運的連接通道。其中於三樓捷運出口處往上方走連接左上方的里民服務盒為廊道,提供捷運站的人們方便連接托兒以及托老的服務機構。
里民服務盒(垂直動線),則是位在左上角,除一樓里民辦公室與垂直動線本身無關因為考慮需連接大馬路方便與外界溝通為由設置,從二樓到五樓分別設置托兒中心、托老中心、桌球場和觀景台、健身房等設施。提供里民基礎的服務以及舒適的運動空間。



































































