第2回 楊瑞禎建築師紀念設計獎 參加作品編號 033
作品名稱:開放&連結-建築修練所
設計者:張幼薇
系所:國立聯合大學建築系三年級
作品時間:2023年11月02日
指導老師:李秉勳
題目及基地概要
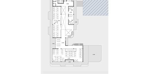
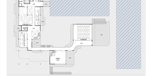
這次的題目是要改建自己系上的工作室,設需求是需要有大視聽、大評圖教室、小評圖教室兼上課教室、展覽空間、專業教室、工作室、超商及其他有需求空間等。
基地原先是位於有高低差的地方南向比北向高了250公分,原先建築位子東向有中庭但較少人座使用,以及西向有一棟高10層樓的建築中間相隔一條約10公尺的通道。
設計發想及概念:
在這次的設計中主要是想將原先封閉的建築系館打開及跟中庭作連結,利用一層的配置將空間開及串聯,將西巷狹小的通道與中庭作為連結。在建築外觀及室內上採用了三層的打開手法分別為全開放:玻璃帷幕及矮牆;半開放:半透明玻璃帷幕及半高牆;不開放:實牆及高牆,室外對空間的打開透過視覺及連接廊道做為引導。
設計說明
室外
室內
作品名稱:開放&連結-建築修練所
設計者:張幼薇
系所:國立聯合大學建築系三年級
作品時間:2023年11月02日
指導老師:李秉勳
題目及基地概要
這次的題目是要改建自己系上的工作室,設需求是需要有大視聽、大評圖教室、小評圖教室兼上課教室、展覽空間、專業教室、工作室、超商及其他有需求空間等。
基地原先是位於有高低差的地方南向比北向高了250公分,原先建築位子東向有中庭但較少人座使用,以及西向有一棟高10層樓的建築中間相隔一條約10公尺的通道。
設計發想及概念:
在這次的設計中主要是想將原先封閉的建築系館打開及跟中庭作連結,利用一層的配置將空間開及串聯,將西巷狹小的通道與中庭作為連結。在建築外觀及室內上採用了三層的打開手法分別為全開放:玻璃帷幕及矮牆;半開放:半透明玻璃帷幕及半高牆;不開放:實牆及高牆,室外對空間的打開透過視覺及連接廊道做為引導。
設計說明
室外
- 將建築退縮部分空間創造連接廣場,可作為連接通道及中庭的橋梁及提供給學生聚集的空間。
- 再退縮廣場上做逐漸向外延伸的空間,使延伸空間可以畏光場遮擋陽光的直射。
- 把中庭劃分成兩個空間,使原先空曠的中庭劃分成比較可使用的空間大小。
- 在高低差的地方做成下沉式廣場,利用下沉式的廣場指引人走向中庭的位置,同時也提供了戶外的表演場地。
- 戶外植栽做為引導人走向,使人下意識地向中庭走去,同時也提供了視覺的指引。
- 在率利的部分做了些需的山丘,讓人可以坐在上面休息玩耍。
- 每層樓也各自留出一圈的外廊除了提供遮陽的效果,同時也提供了戶外休息空間。
- 外廊也設置了些停滯空間讓人可在一個流動的空間中,有一個可以好好休憩的地方。
室內
- 將動線設置在中央處,可使每個教室有足夠的採光。
- 室內供設置的三座樓梯及一座電梯,其中一座樓梯式景觀梯可以和中庭作交流。
- 從一層到四層分別從公共到個人使用;專業教室è評圖教室è工作室。
- 二樓的廊道不只作為過道使用,同時也可作為觀賞中庭活動及欣賞的用途。
- 將評圖空間及展覽空間放置在一起,可達到循環使用。
- 中間設置了天井使走廊不會感到陰沉。
- 平面配置上已間接式的延伸到中庭。





































































