地區美術館_視覺中介Visual Mediations
設計者:賀昭恩
系所:淡江大學建築系
作品時間:2019年大三作品
指導老師:顏亮平老師
第1回 楊瑞禎建築師紀念設計獎 參加作品編號043
分類:建築設計
設計說明
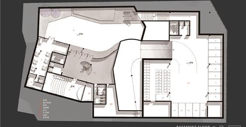
本次設計以淡水地區美術館作為設計主題,來進行建築的精神性的設計訓練。建築的精神性最容易在宗教性的建築空間中產生。在東方,宗教建築借用鳥居/山門,用以界定世俗與神聖的差別,並利用動線以及空間轉換的安排,藉以洗淨世俗的紛擾,以便進一步將精神專注於信仰之中;而在西方,光線的運用、建築尺度的控制,與建築序列的安排等等引導人與神產生對話的可能性。這種建築/空間的精神性,促使建築不再僅是滿足機能、使用等課題,更是將建築提升至紀念永恆的象徵。除了宗教建築之外,藝術品往往展現藝術家的精神性,遠勝於藝術的技術性,故使美術館的建築設計,亦與藝術的精神性結合在一起。好的美術館提供建築、人、藝術創作三者在精神上的連結,反之,則干擾著人與藝術的交流。本次設計期以美術館作為建築的精神性的訓練。
主題概論_視覺中介
我認為美術館對於藝術、對於觀者,是一個「中介」,類似媒介、傳遞者的角色,能夠加深抑或是改變觀者對於藝術品的看法與感受。由於此美術館既是在「淡水地區」與外來者的中介、也是「藝術」與「淡水國小」的中介,我對於美術館抱有的態度是和藹的、和諧的,是能保有藝術與國小生教育學習目的的
地區美術館。因此,一開始的設計發想是由涵蓋淡水之大尺度的”Geography”著手,由淡水海岸線特色、山脈走向、觀音山軸向等數值決定量體的分布與偏移角度。接著再因應基地的特色決定開口、量體實與虛的分配與廣場留處。
設計者:賀昭恩
系所:淡江大學建築系
作品時間:2019年大三作品
指導老師:顏亮平老師
第1回 楊瑞禎建築師紀念設計獎 參加作品編號043
分類:建築設計
設計說明
本次設計以淡水地區美術館作為設計主題,來進行建築的精神性的設計訓練。建築的精神性最容易在宗教性的建築空間中產生。在東方,宗教建築借用鳥居/山門,用以界定世俗與神聖的差別,並利用動線以及空間轉換的安排,藉以洗淨世俗的紛擾,以便進一步將精神專注於信仰之中;而在西方,光線的運用、建築尺度的控制,與建築序列的安排等等引導人與神產生對話的可能性。這種建築/空間的精神性,促使建築不再僅是滿足機能、使用等課題,更是將建築提升至紀念永恆的象徵。除了宗教建築之外,藝術品往往展現藝術家的精神性,遠勝於藝術的技術性,故使美術館的建築設計,亦與藝術的精神性結合在一起。好的美術館提供建築、人、藝術創作三者在精神上的連結,反之,則干擾著人與藝術的交流。本次設計期以美術館作為建築的精神性的訓練。
主題概論_視覺中介
我認為美術館對於藝術、對於觀者,是一個「中介」,類似媒介、傳遞者的角色,能夠加深抑或是改變觀者對於藝術品的看法與感受。由於此美術館既是在「淡水地區」與外來者的中介、也是「藝術」與「淡水國小」的中介,我對於美術館抱有的態度是和藹的、和諧的,是能保有藝術與國小生教育學習目的的
地區美術館。因此,一開始的設計發想是由涵蓋淡水之大尺度的”Geography”著手,由淡水海岸線特色、山脈走向、觀音山軸向等數值決定量體的分布與偏移角度。接著再因應基地的特色決定開口、量體實與虛的分配與廣場留處。





























































