循環城市-綠色運輸與辦公室交響曲
設計者:黃浩
系所:淡江大學建築系
作品時間:2018年大三作品
指導老師:賴怡成老師
第1回 楊瑞禎建築師紀念設計獎 參加作品編號042
設計說明
迄今為止騎自行車不僅僅是少數狂熱分子的活動,而是一個健康,高效和可持續的交通工具。然而,真正的問題是:騎自行車會改變城市嗎?它是否會導致新的城市形式,或者創造新的辦公氛圍的可能?我相信如此。我相信騎自行車可能是21世紀城市復興開端的催化劑。
自行車運動在台灣已經以肉眼可見的速度在成長,而它的出現給我們有更好的機會去認識它帶給我們的變化,包刮它如何影響我們的生活。綠色運輸或許可以是一個詞彙,可以概括自行車去也各種成長的可能,而我將藉由綠色運輸對於辦公大樓的探討,將它帶入工作之中,創造新的生活經驗。
現代環保意識抬頭,連自行車公司也不得不將”永續”納入整個生產鏈中,以巨大機械為例,不僅創造出來的產品具有回收價值,對環境汙染也降低,同時也達到使用永續領頭羊的功用,而綠色運輸正是從永續的角度演化而來,藉由推動使用低汙染、省能源、智慧化的運輸工具,提供安全舒適,環保且共生共榮的永續運輸環境,增加地方政府及民眾的認識與共識。
在我的設計中,自行車大樓與周遭綠色運輸串聯,成為一個新的U-BIKE據點,與其他自行車綠色生活形成一個綠色運輸圈,期待以未來的視角來看,可以影響並且與其他地方的綠色運輸圈產生連結。
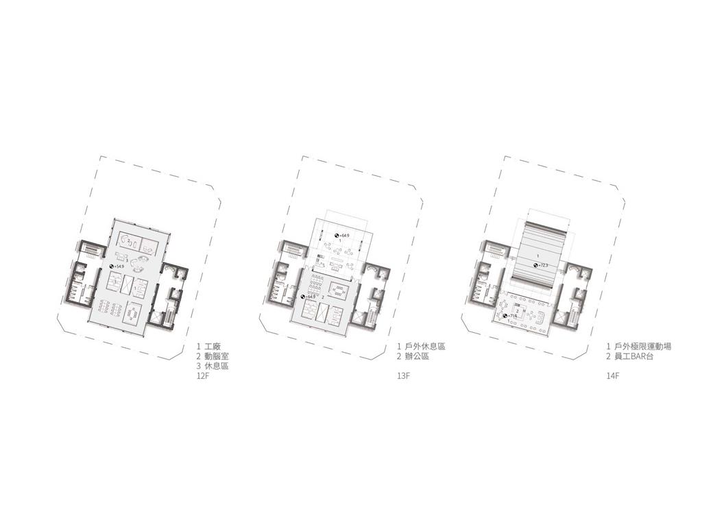
從辦公室的角度來看,我將綠色運輸與工作、旅遊、運動、產學合作、運動等等面向結合考量,提供對應的PROGRAM,希望可以與周邊環境達到最大的綠色運輸效益。一樓戶外及頂樓提供極限運動場,同時自行車可以從一樓的自行車道沿著建築量體向上騎,五樓設有最新的自行車展示區和腳踏車停放區,同時五到七樓是辦公室,八樓則是騎車流汗了可以來這裡沖澡,設有澡堂和BAR台,樓上則是工廠和其他辦公室。
整體而言,這不再只是一棟自行車總部大樓,而是可以與周遭環境互動,同時可以在裡面工作的更健康。
設計者:黃浩
系所:淡江大學建築系
作品時間:2018年大三作品
指導老師:賴怡成老師
第1回 楊瑞禎建築師紀念設計獎 參加作品編號042
設計說明
迄今為止騎自行車不僅僅是少數狂熱分子的活動,而是一個健康,高效和可持續的交通工具。然而,真正的問題是:騎自行車會改變城市嗎?它是否會導致新的城市形式,或者創造新的辦公氛圍的可能?我相信如此。我相信騎自行車可能是21世紀城市復興開端的催化劑。
自行車運動在台灣已經以肉眼可見的速度在成長,而它的出現給我們有更好的機會去認識它帶給我們的變化,包刮它如何影響我們的生活。綠色運輸或許可以是一個詞彙,可以概括自行車去也各種成長的可能,而我將藉由綠色運輸對於辦公大樓的探討,將它帶入工作之中,創造新的生活經驗。
現代環保意識抬頭,連自行車公司也不得不將”永續”納入整個生產鏈中,以巨大機械為例,不僅創造出來的產品具有回收價值,對環境汙染也降低,同時也達到使用永續領頭羊的功用,而綠色運輸正是從永續的角度演化而來,藉由推動使用低汙染、省能源、智慧化的運輸工具,提供安全舒適,環保且共生共榮的永續運輸環境,增加地方政府及民眾的認識與共識。
在我的設計中,自行車大樓與周遭綠色運輸串聯,成為一個新的U-BIKE據點,與其他自行車綠色生活形成一個綠色運輸圈,期待以未來的視角來看,可以影響並且與其他地方的綠色運輸圈產生連結。
從辦公室的角度來看,我將綠色運輸與工作、旅遊、運動、產學合作、運動等等面向結合考量,提供對應的PROGRAM,希望可以與周邊環境達到最大的綠色運輸效益。一樓戶外及頂樓提供極限運動場,同時自行車可以從一樓的自行車道沿著建築量體向上騎,五樓設有最新的自行車展示區和腳踏車停放區,同時五到七樓是辦公室,八樓則是騎車流汗了可以來這裡沖澡,設有澡堂和BAR台,樓上則是工廠和其他辦公室。
整體而言,這不再只是一棟自行車總部大樓,而是可以與周遭環境互動,同時可以在裡面工作的更健康。

















































