第2回 楊瑞禎建築師紀念設計獎 參加作品編號 038
作品名稱:PATCH-前鎮草衙補丁計畫
設計者:周采鈺、盧昱綺
系所:逢甲大學建築系五年級
作品時間:2022 1月 (四年級作品)
指導老師:黃文彬、李元榮
設計說明 01
鄰近高雄亞洲新灣區的草衙,卻是全台灣違建最多的區域,有著許多不平等的住宅問題。因為拆船工業的快速興起與衰弱,人口大量在1960年代移入又在1970年大量移出,造成草衙境內充斥著破舊房屋與高矮不一的平房,居住者也大是藍領階級的勞工,因此我們從中找出這類的閒置空間,並以允棟市場這塊裡地做為示範地來執行這項「補丁計畫」。
我們想運用社會中自發性的力量將都市中「失落的空間」作為城市中的補丁,進而縫合都市中的發展缺口,不論貧窮富貴,為所有人提供可負擔的住所。希望帶來一個不斷變化的居住型態。且「以人為本」的構築過程,重新聚焦在居民對其生活條件、社區凝聚力、居住平等與都市發展孔隙的課題,我們相信唯有建立一個平等的公共空間,才能讓使用者彼此建立信任。
設計失序 DESIGN DISORDER
如果「失序」的定義是一種不穩定狀態,那麼我們提出的設計策略就是挑戰當前強加秩序的建築形式。「設計失序」意味著設計靈活、適應性強並接受持續變化的干預措施。這種設計以非正式、自然和無計劃的方式連接公共區域,創造了一種包容差異和未知的生活模式。
COVID-19後,現代城市的僵化與過度功能限制導致環境束縛住大眾的行動,這類生硬的環境束縛住大眾的行動,所以當公共與私密的邊界具有促進活動的功能時,會形成具備「滲透性」與防護力的「多孔界線」。
在社區中同時我們希望藉由「由下而上」的運營模式,透過企業提供的資金構築了小型的商店空間或是舉辦活動,而企業也能創造就業機會給居民,居民則為商店帶來了利潤,他們也是建築空間的使用者,未來企業若搬離,空間卻依然存在並成為公共場域的一環。
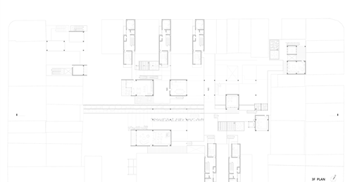
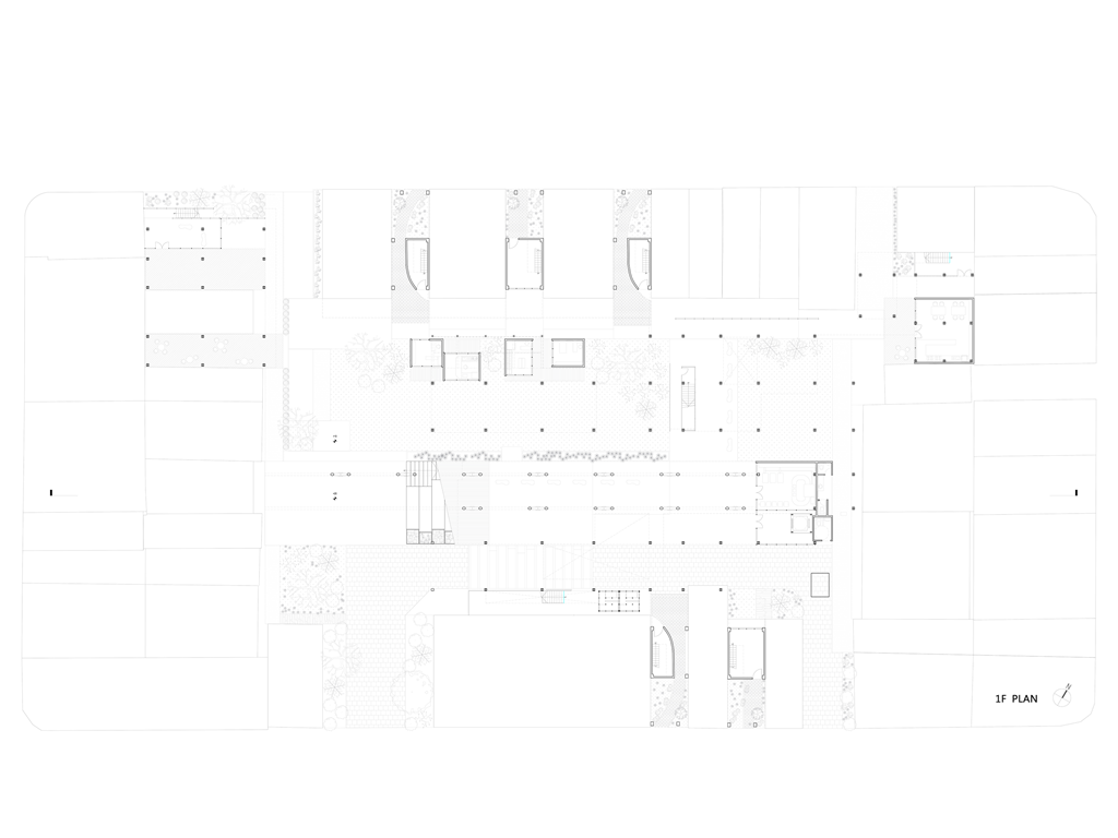
設計說明02
我們嘗試置入不同具有生產力的「神經元」,讓此社區達到自給自足的狀態。穿過各個共享空間的「運輸帶」系統達到資源的轉換與再利用,「空氣能源塔」除了雨水發電外也提供客廳新鮮空氣與光線的垂直空間,廚房邊「綠色階梯」則將生活汙水轉換後用於菜園澆灌,而這些神經元並不是永不改變的,將會隨著不同地區、不同使用者置入他們需要的設計。
我們在此項目中重新思考了住房問題,證明了「PATCH」實現了一個不斷變化的居住型態,且以人為本的構築過程。
作品名稱:PATCH-前鎮草衙補丁計畫
設計者:周采鈺、盧昱綺
系所:逢甲大學建築系五年級
作品時間:2022 1月 (四年級作品)
指導老師:黃文彬、李元榮
設計說明 01
鄰近高雄亞洲新灣區的草衙,卻是全台灣違建最多的區域,有著許多不平等的住宅問題。因為拆船工業的快速興起與衰弱,人口大量在1960年代移入又在1970年大量移出,造成草衙境內充斥著破舊房屋與高矮不一的平房,居住者也大是藍領階級的勞工,因此我們從中找出這類的閒置空間,並以允棟市場這塊裡地做為示範地來執行這項「補丁計畫」。
我們想運用社會中自發性的力量將都市中「失落的空間」作為城市中的補丁,進而縫合都市中的發展缺口,不論貧窮富貴,為所有人提供可負擔的住所。希望帶來一個不斷變化的居住型態。且「以人為本」的構築過程,重新聚焦在居民對其生活條件、社區凝聚力、居住平等與都市發展孔隙的課題,我們相信唯有建立一個平等的公共空間,才能讓使用者彼此建立信任。
設計失序 DESIGN DISORDER
如果「失序」的定義是一種不穩定狀態,那麼我們提出的設計策略就是挑戰當前強加秩序的建築形式。「設計失序」意味著設計靈活、適應性強並接受持續變化的干預措施。這種設計以非正式、自然和無計劃的方式連接公共區域,創造了一種包容差異和未知的生活模式。
COVID-19後,現代城市的僵化與過度功能限制導致環境束縛住大眾的行動,這類生硬的環境束縛住大眾的行動,所以當公共與私密的邊界具有促進活動的功能時,會形成具備「滲透性」與防護力的「多孔界線」。
在社區中同時我們希望藉由「由下而上」的運營模式,透過企業提供的資金構築了小型的商店空間或是舉辦活動,而企業也能創造就業機會給居民,居民則為商店帶來了利潤,他們也是建築空間的使用者,未來企業若搬離,空間卻依然存在並成為公共場域的一環。
設計說明02
我們嘗試置入不同具有生產力的「神經元」,讓此社區達到自給自足的狀態。穿過各個共享空間的「運輸帶」系統達到資源的轉換與再利用,「空氣能源塔」除了雨水發電外也提供客廳新鮮空氣與光線的垂直空間,廚房邊「綠色階梯」則將生活汙水轉換後用於菜園澆灌,而這些神經元並不是永不改變的,將會隨著不同地區、不同使用者置入他們需要的設計。
我們在此項目中重新思考了住房問題,證明了「PATCH」實現了一個不斷變化的居住型態,且以人為本的構築過程。



































































