第2回 楊瑞禎建築師紀念設計獎 參加作品編號 026
作品名稱:解放建築的序論
設計者:林敬唐
系所:國立聯合大學 日建築四甲
作品時間:大三第一次設計題目
指導老師:林裕森
設計說明
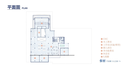
本次設計以改造聯合大學建築系館工作室為址,進行空間、立面的改造。我認為大三是做為建築修煉者的一個分水嶺,歷經兩年的磨練後,將所學內容實踐在設計,提出一個完整的作品的開端,因此有了序論一說。現在將眼光放回自己生活的地方,讓我重新思考自己心目中所追求的建築,究竟是什麼形式、樣貌的,最後得出了:想創作出具有獨特性,與眾不同的建築。因此期許能"解放"自己的想法,提出更創新的建築。概念模的表達上是以數個不同程度開放的量體鑲嵌在一起,呈現出解放是一個循序漸進的過程,並非只有一跟零兩個面向,因此在東向立面能明確看到不同程度開放的空間關係。
時代背景的解放:從原有建築的建築形式,不禁讓我與戒嚴時期聯想。透過空間的開放感與通透感,從解嚴世代的角度打破傳統形式。
地面層的解放:由建築系的活潑性為出發點,考量基地位在校園學生活動最熱絡的區域,將地面空間留白,以容納更多元的學生活動。而滑板通道提供原本在工設系館前不同形式的活動場所,利用坡道替代一般座位,讓觀眾更能與表演者產生更多互動。
中庭邊界的解放:原有的中庭被建築包圍,無形中形成了一道不可視的高牆,藉由綠化和建築結構的延伸模糊兩者之間的關係。
連接校園的藝文廊道:原有的建築量體將校園切割成兩部分,新建築的北面增設了大階梯供球場周遭的人使用,此廊道除了提供行人遮風避雨的功能,也能讓建築學子的作品增加更多曝光機會。
觀景平台:面向球場的北面有良好的視野景觀,從外部能直接上到三樓的屋頂露臺,藉由階梯上升的高度變化,帶給使用者不同感受。
作品名稱:解放建築的序論
設計者:林敬唐
系所:國立聯合大學 日建築四甲
作品時間:大三第一次設計題目
指導老師:林裕森
設計說明
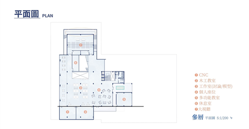
本次設計以改造聯合大學建築系館工作室為址,進行空間、立面的改造。我認為大三是做為建築修煉者的一個分水嶺,歷經兩年的磨練後,將所學內容實踐在設計,提出一個完整的作品的開端,因此有了序論一說。現在將眼光放回自己生活的地方,讓我重新思考自己心目中所追求的建築,究竟是什麼形式、樣貌的,最後得出了:想創作出具有獨特性,與眾不同的建築。因此期許能"解放"自己的想法,提出更創新的建築。概念模的表達上是以數個不同程度開放的量體鑲嵌在一起,呈現出解放是一個循序漸進的過程,並非只有一跟零兩個面向,因此在東向立面能明確看到不同程度開放的空間關係。
時代背景的解放:從原有建築的建築形式,不禁讓我與戒嚴時期聯想。透過空間的開放感與通透感,從解嚴世代的角度打破傳統形式。
地面層的解放:由建築系的活潑性為出發點,考量基地位在校園學生活動最熱絡的區域,將地面空間留白,以容納更多元的學生活動。而滑板通道提供原本在工設系館前不同形式的活動場所,利用坡道替代一般座位,讓觀眾更能與表演者產生更多互動。
中庭邊界的解放:原有的中庭被建築包圍,無形中形成了一道不可視的高牆,藉由綠化和建築結構的延伸模糊兩者之間的關係。
連接校園的藝文廊道:原有的建築量體將校園切割成兩部分,新建築的北面增設了大階梯供球場周遭的人使用,此廊道除了提供行人遮風避雨的功能,也能讓建築學子的作品增加更多曝光機會。
觀景平台:面向球場的北面有良好的視野景觀,從外部能直接上到三樓的屋頂露臺,藉由階梯上升的高度變化,帶給使用者不同感受。





























































