第2回 楊瑞禎建築師紀念設計獎 參加作品編號 023
作品名稱:都會聚落
設計者:吳崇漢
系所:國立臺北科技大學建築系建築三
作品時間:2023/09/12-2023/10/04大三作品
指導老師:黃宏裕
都會聚落 重現以往聚落的熱情 吳崇漢
題目設定
複合性使用的建築因當代人的生活經驗、模式、習性等,其占比係漸漸上升,空間專業者本
身對於機能間彼此之關係也開始有了新的認知及理解,不同的場域結合不同的機能後,有齊
新的定義,其中對於空間的敘述及理解也漸漸的在變化中。
基地資訊
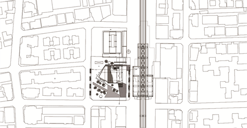
位置:捷運科技大樓捷運站西側
基地面積:1800㎡
使用分區:停車場用地(公共設施用地)
建築規模:以不超過地下四層、地上六層為原則
空間需求
該基地原案以停車空間作為主需求,並設立社福機構(托嬰中心、里民辦公室、社區活動中
心等),提供相因應內容,本題保留原有停車空間及里民辦公室及社區活動中心外,須請每
位同學另行加入另一個(或數個)空間機能,其面積及機能自訂。
停車空間:
自行車停車空間: 350 位(其中有80台須提供給YouBike使用)
汽車停車位: 120格
機車停車位: 190格
里辦公處: 90㎡
日間作業服務機構(社區活動中心、會議室、辦公室、活動中心等): 500㎡
設計說明
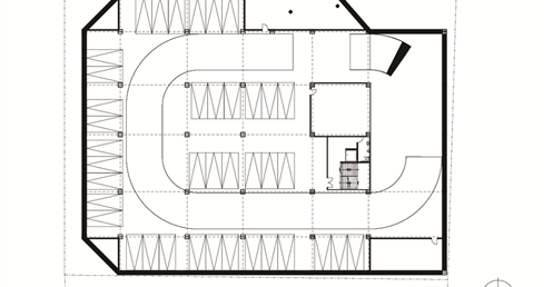
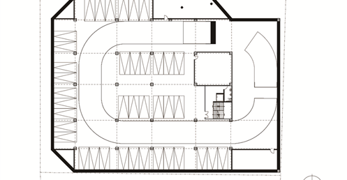
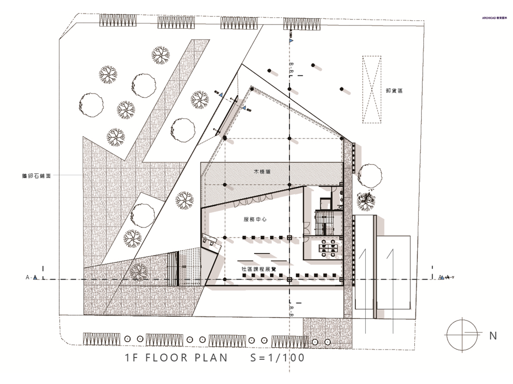
近年來,隨著科技不斷的演進以及都市更新,越來越多以效率、容積量為優先的高樓大廈出現,逐漸地將以前的老宅平房汰換掉。居民們雖然都待在同一棟建築物內,卻在不同的平面空間,有別於以往大家能都一出門就聊天、巧遇鄰居、聚在一塊空地活動等......因此我想將這塊基地設定為一個可以讓附近的社區鄰里可以一起活動、接納捷運站人流以及路邊行人的社區活動中心。
我操作量體的方式是先將人潮最多的兩側街道那一面製造出一個的主要活動廣場,接著將一側量體往後展開,製造許多的平台與空隙增加人們在空間上互動的機會,接著將捷運站及安沐居出入口處的量體挑高,藉此空間緩衝人流。大致的量體塑造完畢後,接著開始進行對基地附近的回應與設計。
首先是復興南路方向,因銜接捷運站,因此迎接他們的將會是三樓的一個挑空空間,我在三樓與二樓廣場間也給了除了服務盒以外的第二條動線分開不同目的地的人流,目的性強的則是使用服務盒到上層的教室講廳空間,而到了地面層的人行道,大面的落地窗展示出了室內展覽的物品,再利用鋪面的轉化,將行人吸引到公園測的大階梯,藉此增加廣場與地面層的互動性,也提高了龍鳳公園的價值。接著西側的住宅區就相對安靜,因此我在量體的外側使用沖孔板作為造型收邊,同時沖孔板的孔洞也不會因此將三四樓教室外側的陽台視野遮蔽,到了晚上,建築物的燈光也會透過沖孔板,照亮一旁陰暗的小巷子,上方的社區教室提供給附近的鄰里居民做使用,教學成果以及成品也將會透過一樓展覽廳以及二樓市集作展示與拍賣,讓所有來到這座廣場的不同使用者看到。
在這個步調快的時代中,放慢腳步、聚在一起聊聊吧......
作品名稱:都會聚落
設計者:吳崇漢
系所:國立臺北科技大學建築系建築三
作品時間:2023/09/12-2023/10/04大三作品
指導老師:黃宏裕
都會聚落 重現以往聚落的熱情 吳崇漢
題目設定
複合性使用的建築因當代人的生活經驗、模式、習性等,其占比係漸漸上升,空間專業者本
身對於機能間彼此之關係也開始有了新的認知及理解,不同的場域結合不同的機能後,有齊
新的定義,其中對於空間的敘述及理解也漸漸的在變化中。
基地資訊
位置:捷運科技大樓捷運站西側
基地面積:1800㎡
使用分區:停車場用地(公共設施用地)
建築規模:以不超過地下四層、地上六層為原則
空間需求
該基地原案以停車空間作為主需求,並設立社福機構(托嬰中心、里民辦公室、社區活動中
心等),提供相因應內容,本題保留原有停車空間及里民辦公室及社區活動中心外,須請每
位同學另行加入另一個(或數個)空間機能,其面積及機能自訂。
停車空間:
自行車停車空間: 350 位(其中有80台須提供給YouBike使用)
汽車停車位: 120格
機車停車位: 190格
里辦公處: 90㎡
日間作業服務機構(社區活動中心、會議室、辦公室、活動中心等): 500㎡
設計說明
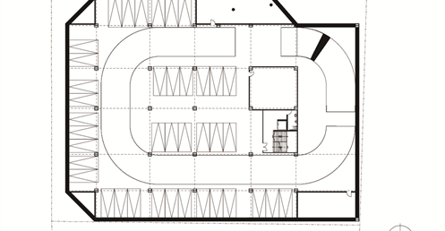
近年來,隨著科技不斷的演進以及都市更新,越來越多以效率、容積量為優先的高樓大廈出現,逐漸地將以前的老宅平房汰換掉。居民們雖然都待在同一棟建築物內,卻在不同的平面空間,有別於以往大家能都一出門就聊天、巧遇鄰居、聚在一塊空地活動等......因此我想將這塊基地設定為一個可以讓附近的社區鄰里可以一起活動、接納捷運站人流以及路邊行人的社區活動中心。
我操作量體的方式是先將人潮最多的兩側街道那一面製造出一個的主要活動廣場,接著將一側量體往後展開,製造許多的平台與空隙增加人們在空間上互動的機會,接著將捷運站及安沐居出入口處的量體挑高,藉此空間緩衝人流。大致的量體塑造完畢後,接著開始進行對基地附近的回應與設計。
首先是復興南路方向,因銜接捷運站,因此迎接他們的將會是三樓的一個挑空空間,我在三樓與二樓廣場間也給了除了服務盒以外的第二條動線分開不同目的地的人流,目的性強的則是使用服務盒到上層的教室講廳空間,而到了地面層的人行道,大面的落地窗展示出了室內展覽的物品,再利用鋪面的轉化,將行人吸引到公園測的大階梯,藉此增加廣場與地面層的互動性,也提高了龍鳳公園的價值。接著西側的住宅區就相對安靜,因此我在量體的外側使用沖孔板作為造型收邊,同時沖孔板的孔洞也不會因此將三四樓教室外側的陽台視野遮蔽,到了晚上,建築物的燈光也會透過沖孔板,照亮一旁陰暗的小巷子,上方的社區教室提供給附近的鄰里居民做使用,教學成果以及成品也將會透過一樓展覽廳以及二樓市集作展示與拍賣,讓所有來到這座廣場的不同使用者看到。
在這個步調快的時代中,放慢腳步、聚在一起聊聊吧......















































































