第2回 楊瑞禎建築師紀念設計獎 參加作品編號 020
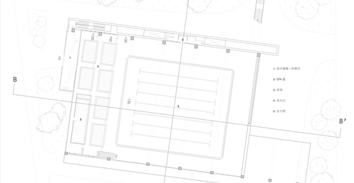
作品名稱:黎明運動中心
設計者:林耕亘
系所:東海大學建築系四年級
作品時間:2023/1 (建築系三上)
指導老師:蔡慈媛
設計說明
本次設計藉由案例分析討論建築中In-Between的關係,在黎明新村基地上延伸
應用,構成以泳池、健身中心為主要機能的公共空間。過程中整合乾濕系統,嘗試在剖面關係中創造流動性,並以結構的整合作為調配上下空間關係的媒介。
藉上述手段所創造出空間的整體性,使得運動中心的使用者無論從事何項活動,皆能透過剖面及平面上的穿透性,產生觀看或是被觀看的關係,而不因乾空間與濕空間的分離被阻隔,使整體以活絡、開放的氣氛相互流動,也提供外來遊客進入運動中心休憩的場所,感受當地居民生活情境的機會。
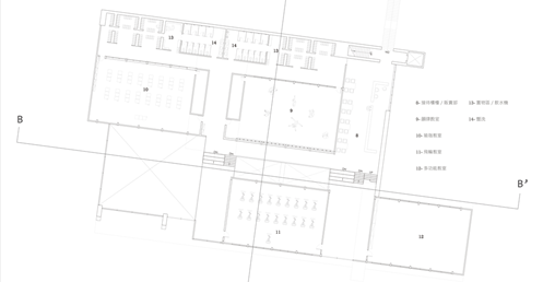
作品名稱:黎明運動中心
設計者:林耕亘
系所:東海大學建築系四年級
作品時間:2023/1 (建築系三上)
指導老師:蔡慈媛
設計說明
本次設計藉由案例分析討論建築中In-Between的關係,在黎明新村基地上延伸
應用,構成以泳池、健身中心為主要機能的公共空間。過程中整合乾濕系統,嘗試在剖面關係中創造流動性,並以結構的整合作為調配上下空間關係的媒介。
藉上述手段所創造出空間的整體性,使得運動中心的使用者無論從事何項活動,皆能透過剖面及平面上的穿透性,產生觀看或是被觀看的關係,而不因乾空間與濕空間的分離被阻隔,使整體以活絡、開放的氣氛相互流動,也提供外來遊客進入運動中心休憩的場所,感受當地居民生活情境的機會。





























































