第2回 楊瑞禎建築師紀念設計獎 參加作品編號 003
作品名稱 :與樂(木柵國小設計案)
設計者:陳靖緯
系所:中國科技大學/建築系/大四
作品時間:大三下學期第一次設計
指導老師:王志祥建築師
設計說明
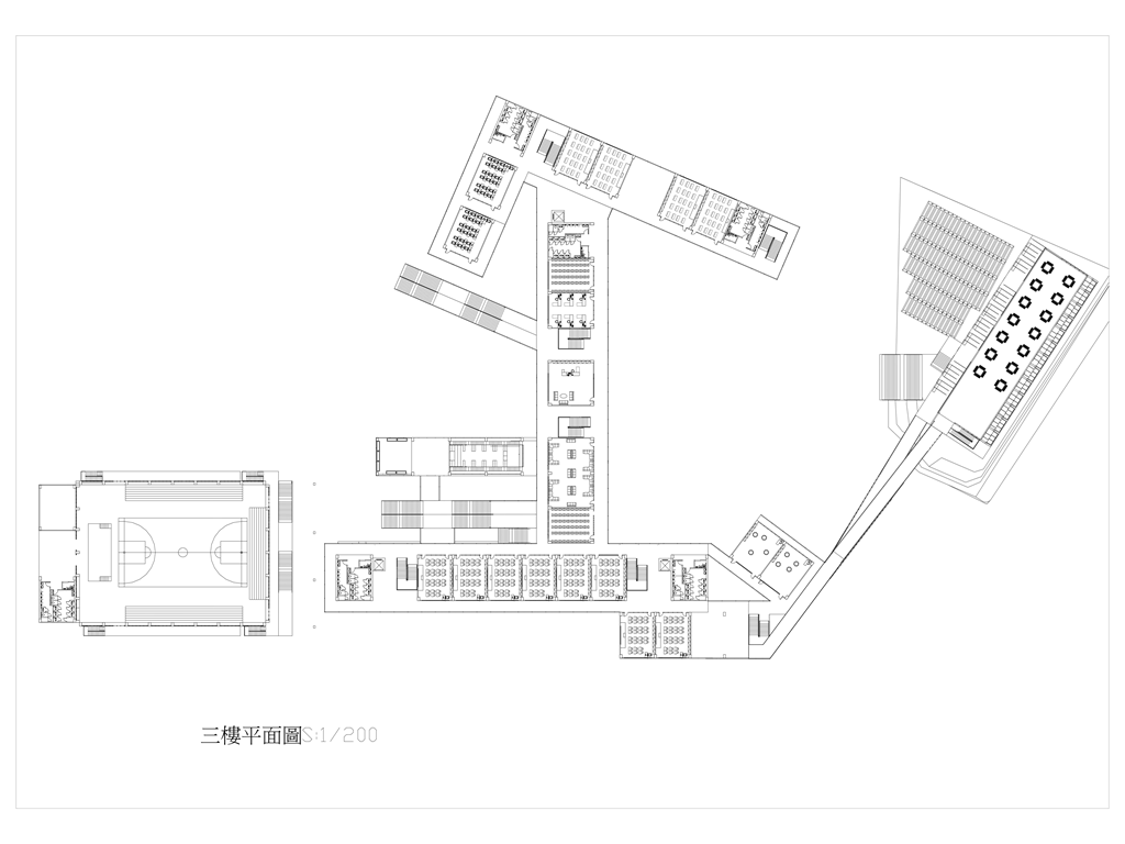
這件作品叫做與樂源自於一首歌詞與你分享的快樂勝過獨自擁有,基地位置在原木柵國小,這次設計我在做基地分析時整理了幾個重點
1.基地背部高低起伏大環境較於潮濕
2.原木柵國小的主要動線是一旁的木柵路一段與正門口的木柵路二段在上下課的接送和車況會堵塞
3.主要周圍的用戶為社區住宅的用戶居多,
對此我做了幾的處理方式
1.將基地內部的山改變成梯田式讓雨水可以更有效的利用與改善基地內的潮濕環境
2.將主入口改變擴大一來增加辨識度二來拓寬的停滯空間可以讓接送孩子的家長更便利,在此我還增設了一條車道可以由木柵路一段的校門口進入,由秀明路一段出去這樣做是為了汽車的便道可以減少車流堵塞的情況
3.我在秀明路一段和原文山公民會館後面增設了側門出路口前者是為了方便學生廚房和垃圾車載貨可以和學生動線分開避免危險後者是為了讓周圍住戶更友善的抵達學院內部的操場或活動中心,而在設計之初我的主要概念有/與民共享/拉近人與山的距離/建立校園農場/公共空間的重組/大自然的調色盤,等設計初衷
對此我設計了幾個主要設施
1梯田式的學生農場和室內溫室花園帶路魚菜共生的理念將水源運用到永續上也能讓學生們充分體驗到粒粒皆辛苦的道理
2.校園內部有大型戶外階梯與空中橋實現了全校通達的效果因文山區長期下雨這樣做可以讓學生在不淋雨的狀況下通達溫室/活動中心/教室/學生餐廳/圖書館等區域
3.活動中心內部將原木柵國小中的游泳池和運動場集會場所等集中在一起,充分利用空間
4.整體校園有多處的生態池和保留了原國小內部的成年老木在改頭換面的同時我也希望可以盡量保留原有的植栽與樹木
5.校園內部增設了多個停留點例如:操場旁的涼亭/頂樓的戶外休憩空間/校門口進入後的停留空間等這樣做是希望可以讓學生在下課之餘可以放鬆不要一直待在教室內部
6.圖書館是一棟階梯式的建築也和其他的不同我將三面都開窗這樣是為了視覺的通透感與希望學生可以在更有趣的環境下學習。
作品名稱 :與樂(木柵國小設計案)
設計者:陳靖緯
系所:中國科技大學/建築系/大四
作品時間:大三下學期第一次設計
指導老師:王志祥建築師
設計說明
這件作品叫做與樂源自於一首歌詞與你分享的快樂勝過獨自擁有,基地位置在原木柵國小,這次設計我在做基地分析時整理了幾個重點
1.基地背部高低起伏大環境較於潮濕
2.原木柵國小的主要動線是一旁的木柵路一段與正門口的木柵路二段在上下課的接送和車況會堵塞
3.主要周圍的用戶為社區住宅的用戶居多,
對此我做了幾的處理方式
1.將基地內部的山改變成梯田式讓雨水可以更有效的利用與改善基地內的潮濕環境
2.將主入口改變擴大一來增加辨識度二來拓寬的停滯空間可以讓接送孩子的家長更便利,在此我還增設了一條車道可以由木柵路一段的校門口進入,由秀明路一段出去這樣做是為了汽車的便道可以減少車流堵塞的情況
3.我在秀明路一段和原文山公民會館後面增設了側門出路口前者是為了方便學生廚房和垃圾車載貨可以和學生動線分開避免危險後者是為了讓周圍住戶更友善的抵達學院內部的操場或活動中心,而在設計之初我的主要概念有/與民共享/拉近人與山的距離/建立校園農場/公共空間的重組/大自然的調色盤,等設計初衷
對此我設計了幾個主要設施
1梯田式的學生農場和室內溫室花園帶路魚菜共生的理念將水源運用到永續上也能讓學生們充分體驗到粒粒皆辛苦的道理
2.校園內部有大型戶外階梯與空中橋實現了全校通達的效果因文山區長期下雨這樣做可以讓學生在不淋雨的狀況下通達溫室/活動中心/教室/學生餐廳/圖書館等區域
3.活動中心內部將原木柵國小中的游泳池和運動場集會場所等集中在一起,充分利用空間
4.整體校園有多處的生態池和保留了原國小內部的成年老木在改頭換面的同時我也希望可以盡量保留原有的植栽與樹木
5.校園內部增設了多個停留點例如:操場旁的涼亭/頂樓的戶外休憩空間/校門口進入後的停留空間等這樣做是希望可以讓學生在下課之餘可以放鬆不要一直待在教室內部
6.圖書館是一棟階梯式的建築也和其他的不同我將三面都開窗這樣是為了視覺的通透感與希望學生可以在更有趣的環境下學習。























































