Park.O 住宅設計作品
高雄市鳳山區 頂記園丰景
設計師 謝秀如 + 趙韻蓉
譽誠設計公司 設計總監
設計說明
本案完成於2018年,為擔任成舍設計承德公司設計總監時期作品。共同設計師 成舍承德趙韻蓉助理總監。
流動美學
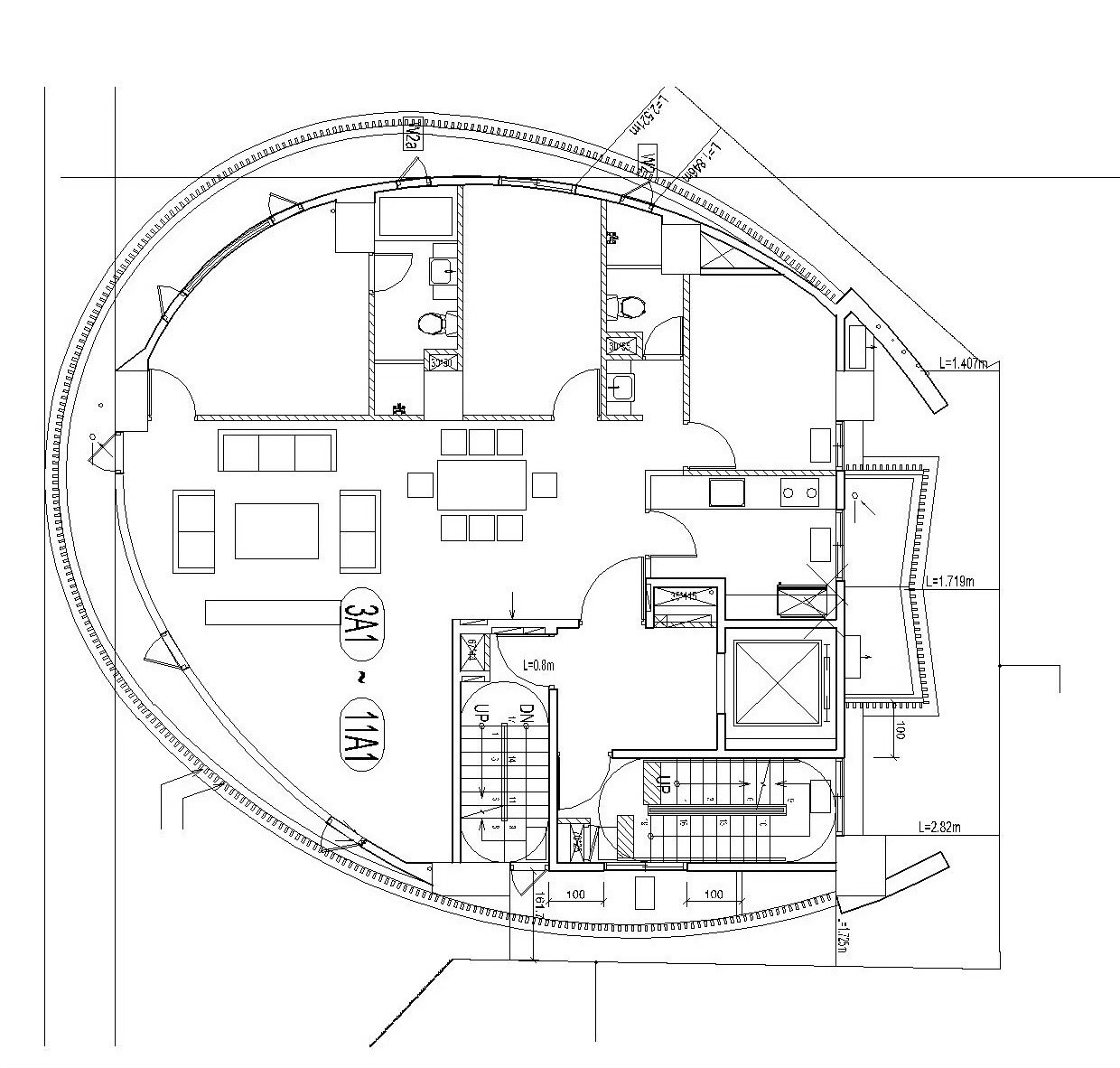
步入室內,視線隨即被沉穩的灰黑立面引領至此宅最為優美的弧形窗面,將萬坪衛武營公園景觀盡納眼底。
設計團隊順著建築圓弧狀外觀規劃出完整的公共廳區,利用無隔間的複合式設計,爭取到一座中島吧台,也兜攏了一家人的生活核心;無論是談笑坐臥、飯食小酌皆可共享遼闊視角。運用紋理層次分明且具自然觸感的拓採岩鋪陳電視主牆,佐以飽和墨黑色打造猶如畫屏的大器端景,並順勢將主臥及客浴門片隱藏其中,建立開闊舒適的視覺。客廳與主臥之間採木作輕隔間的做法,賦予兩個場域各擁收納櫃體的充實機能;此外,臥室亦利用了結構柱與畸零角落延伸出臥榻與電視櫃,展現兼具視覺美學與生活實用的設計巧思。
將原先規劃的封閉式廚房改為多功能室,既是相鄰次臥的延伸場域,拉門闔
上後也能作為客房使用。拆除原規劃的其中一間次臥後,擴大主臥空間尺度,機能也更臻完備。在原有平面規劃裡形成畸零、難以利用的角落,改為開放式廚房後,更添生活情趣!
重整格局
敞闊流暢新生活
設計者突破既有的平面規劃盲點,在約莫30坪空間裡築構開敞的公共廳區、2+1房的彈性空間佈局,以及擁有完整藏衣間、備有獨立澡缸之主浴等高規格的主臥場域,刻劃精緻而舒適的居家場景。
動線:看似完整而俐落的立面,構成進門的第一視覺,當中其實還隱藏了通往主臥與客浴的入口。
設計: 運用木作輕隔間的手法,讓主臥和客廳各有專屬的收納櫃,充分發揮坪效。
機能:將格局略作調整後,主臥空間尺度放大,得以享有完整的睡眠區、藏衣間及配備獨立泡澡缸的主浴。
顏色:衛浴間以清淺淡雅的色彩鋪陳,淋浴區配搭同色系花磚巧妙拼貼出浴室風景。
原文引自 www.fullhouseid.com
高雄市鳳山區 頂記園丰景
設計師 謝秀如 + 趙韻蓉
譽誠設計公司 設計總監
設計說明
本案完成於2018年,為擔任成舍設計承德公司設計總監時期作品。共同設計師 成舍承德趙韻蓉助理總監。
流動美學
步入室內,視線隨即被沉穩的灰黑立面引領至此宅最為優美的弧形窗面,將萬坪衛武營公園景觀盡納眼底。
設計團隊順著建築圓弧狀外觀規劃出完整的公共廳區,利用無隔間的複合式設計,爭取到一座中島吧台,也兜攏了一家人的生活核心;無論是談笑坐臥、飯食小酌皆可共享遼闊視角。運用紋理層次分明且具自然觸感的拓採岩鋪陳電視主牆,佐以飽和墨黑色打造猶如畫屏的大器端景,並順勢將主臥及客浴門片隱藏其中,建立開闊舒適的視覺。客廳與主臥之間採木作輕隔間的做法,賦予兩個場域各擁收納櫃體的充實機能;此外,臥室亦利用了結構柱與畸零角落延伸出臥榻與電視櫃,展現兼具視覺美學與生活實用的設計巧思。
將原先規劃的封閉式廚房改為多功能室,既是相鄰次臥的延伸場域,拉門闔
上後也能作為客房使用。拆除原規劃的其中一間次臥後,擴大主臥空間尺度,機能也更臻完備。在原有平面規劃裡形成畸零、難以利用的角落,改為開放式廚房後,更添生活情趣!
重整格局
敞闊流暢新生活
設計者突破既有的平面規劃盲點,在約莫30坪空間裡築構開敞的公共廳區、2+1房的彈性空間佈局,以及擁有完整藏衣間、備有獨立澡缸之主浴等高規格的主臥場域,刻劃精緻而舒適的居家場景。
動線:看似完整而俐落的立面,構成進門的第一視覺,當中其實還隱藏了通往主臥與客浴的入口。
設計: 運用木作輕隔間的手法,讓主臥和客廳各有專屬的收納櫃,充分發揮坪效。
機能:將格局略作調整後,主臥空間尺度放大,得以享有完整的睡眠區、藏衣間及配備獨立泡澡缸的主浴。
顏色:衛浴間以清淺淡雅的色彩鋪陳,淋浴區配搭同色系花磚巧妙拼貼出浴室風景。
原文引自 www.fullhouseid.com



































