清-寵物美容渡假民宿
設計者:袁怡歆
系所:中國科技大學室內設計系
作品時間:2019年大三
指導老師:顏毓宏老師
第1回 楊瑞禎建築師紀念設計獎 參加作品編號040
設計說明
設計說明: 位於金山附近海岸的獨棟別墅,可以挑望整個海岸、陽光給予的熱情,我們期望給予住客一個美好的假期時光。想到可以享受假期,就會希望可以和家人朋友一起度過,但由於家裡有養寵物,會希望我們做的任何行動都能與牠們一起度過,可是在台灣有許多地方對於寵物都不是很方便,導致每一次都必須把寵物放在家裡,看著牠落寞的身影,總是讓我心疼。而在台灣寵物民宿是比較少見的,且環境也不如一般民宿的好或是價格十分昂貴,因此我們就把旅客設定給在台灣較少見的攜帶寵物的家庭與情侶,主要是希望能給予寵物們一個良好的環境度過時光。同時若是沒有寵物的旅客來度假,也有屬於這些消費者獨特的假期安排,讓他們可以跟寵物家庭一起享受同等的待遇。
由於地理環境的關係,若是不想下山,除了給旅客規劃一個完美的觀景區外,也特別與農場主人規劃做一個DIY的體驗場,希望能讓大老遠開車過來的人們不會只有看看風景而已。寵物的部分則是給牠們規劃了大草坪與游泳池,在一陣的玩耍過後,不用擔心清理的問題,在旁邊便有專人服務的寵物美容區,為寵物打造乾淨的外在,在此同時,主人便可以放心的在一旁享受休息的時光,按摩舒壓、與人談心……等等,或是與朋友來點啤酒,在烤肉區烤肉玩耍,使一整天都不無聊。
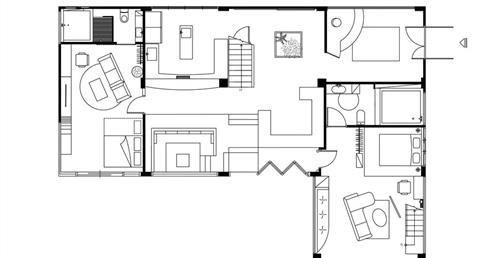
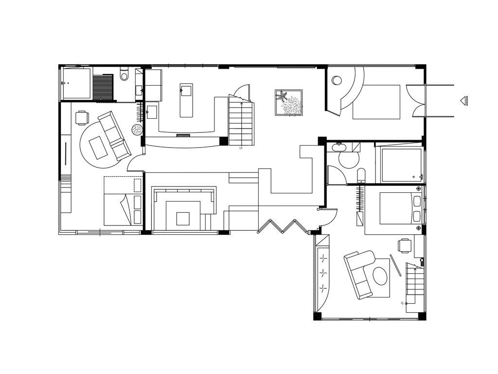
整個民宿總共有三間房間,可以接納狗狗與喵咪或是貓咪體型以下的寵物,由於一樓有個室外空間,所以使用範圍較大的為狗狗,體型較小的寵物便把牠們安排在二樓擁有自己的空間。一樓的設計走的是自然元素的木質風,整體視覺想呈現舒服不給予壓力的設計風格,主要有大範圍的和式沙發可以談心,開放式廚房以及寵物專處廚房,人和寵物食堂分開安心考量,共有兩間房間,一間為獨立的六人房樓中樓,擁有自己的專屬陽台,另一間為2+1房,兩間皆有超大視野可以觀看美景。二樓的區域為寵物餐廳,有狗狗專屬區與貓咪休息區,獨立的玻璃牆分隔讓寵物不易打架,在隔壁有一間視野極佳的觀景房,在陽台中有一張吊床可以不失無聊的看看大海。
設計者:袁怡歆
系所:中國科技大學室內設計系
作品時間:2019年大三
指導老師:顏毓宏老師
第1回 楊瑞禎建築師紀念設計獎 參加作品編號040
設計說明
設計說明: 位於金山附近海岸的獨棟別墅,可以挑望整個海岸、陽光給予的熱情,我們期望給予住客一個美好的假期時光。想到可以享受假期,就會希望可以和家人朋友一起度過,但由於家裡有養寵物,會希望我們做的任何行動都能與牠們一起度過,可是在台灣有許多地方對於寵物都不是很方便,導致每一次都必須把寵物放在家裡,看著牠落寞的身影,總是讓我心疼。而在台灣寵物民宿是比較少見的,且環境也不如一般民宿的好或是價格十分昂貴,因此我們就把旅客設定給在台灣較少見的攜帶寵物的家庭與情侶,主要是希望能給予寵物們一個良好的環境度過時光。同時若是沒有寵物的旅客來度假,也有屬於這些消費者獨特的假期安排,讓他們可以跟寵物家庭一起享受同等的待遇。
由於地理環境的關係,若是不想下山,除了給旅客規劃一個完美的觀景區外,也特別與農場主人規劃做一個DIY的體驗場,希望能讓大老遠開車過來的人們不會只有看看風景而已。寵物的部分則是給牠們規劃了大草坪與游泳池,在一陣的玩耍過後,不用擔心清理的問題,在旁邊便有專人服務的寵物美容區,為寵物打造乾淨的外在,在此同時,主人便可以放心的在一旁享受休息的時光,按摩舒壓、與人談心……等等,或是與朋友來點啤酒,在烤肉區烤肉玩耍,使一整天都不無聊。
整個民宿總共有三間房間,可以接納狗狗與喵咪或是貓咪體型以下的寵物,由於一樓有個室外空間,所以使用範圍較大的為狗狗,體型較小的寵物便把牠們安排在二樓擁有自己的空間。一樓的設計走的是自然元素的木質風,整體視覺想呈現舒服不給予壓力的設計風格,主要有大範圍的和式沙發可以談心,開放式廚房以及寵物專處廚房,人和寵物食堂分開安心考量,共有兩間房間,一間為獨立的六人房樓中樓,擁有自己的專屬陽台,另一間為2+1房,兩間皆有超大視野可以觀看美景。二樓的區域為寵物餐廳,有狗狗專屬區與貓咪休息區,獨立的玻璃牆分隔讓寵物不易打架,在隔壁有一間視野極佳的觀景房,在陽台中有一張吊床可以不失無聊的看看大海。



































































