2029中城客棧 — 電影院旅館
設計者:賴旻彥/ 東海大學建築系
作品時間:2019年大四作品
指導老師:賴人碩老師
第1回 楊瑞禎建築師紀念設計獎 參加作品編號032
設計說明
基地位於台中市中區成功路、市府路交叉口,鄰近台中火車站與台中公園。中區為台中市早期發展的地區,但這二三十年間商業活動逐漸沒落。中區經由日治時期都市規畫,街區呈現棋盤式構成,而道路組織是由大條雙向道與小單行道構成,街區因道路層級的切分,影響了街區內的步行感官經驗。
在中區內,街廓空間幾乎都被房屋完全佔去,而空地僅剩街區內的剩餘空間,少有大型公共空間讓人聚集,而騎樓空間就變為居民日常生活重要的交流空間,騎樓沿街面成為居民生活重要的公共空間與對外界面。
關於2029中城客棧,我希望這塊角地會成為對都市中的聚會場所,因此我置入的program為戶外電影院,讓旅客與居民能藉由電影交流。
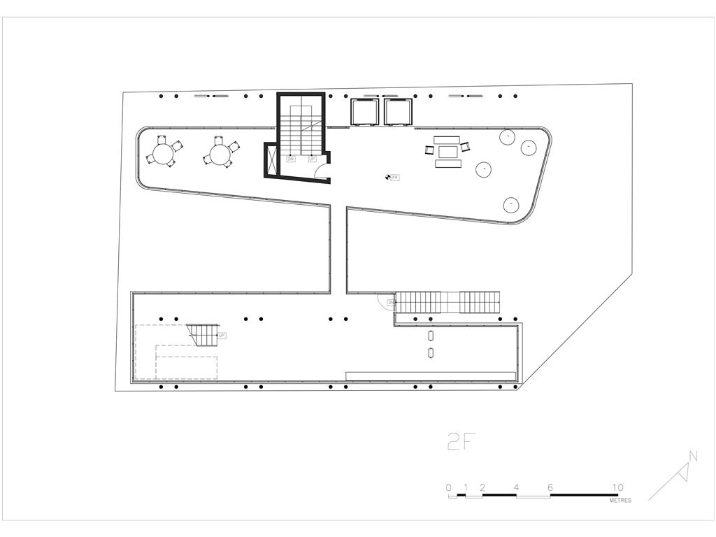
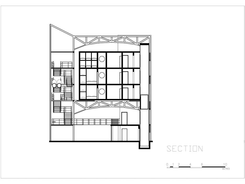
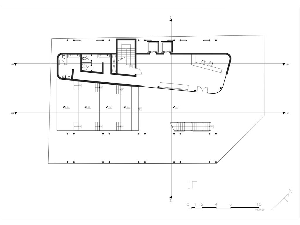
在量體操作上,因中區周遭街廓被房屋佔據,我讓旅館的主量體抬升,將一樓空間開放成為戶外電影院,讓街廓轉角公共性打開,電影成為吸引周遭居民聚集的方式,而機能與服務空間(廁所、逃生梯、電梯)則擺往基地西北側,較不影響底層對外活動空間,東南側則完前開放為居民活動空間。
另外,我希望原有騎樓公共活動立體化,讓騎樓活動動空間被向上抬升,所以在二、三樓設立溜滑梯,成為旅館對外界面。
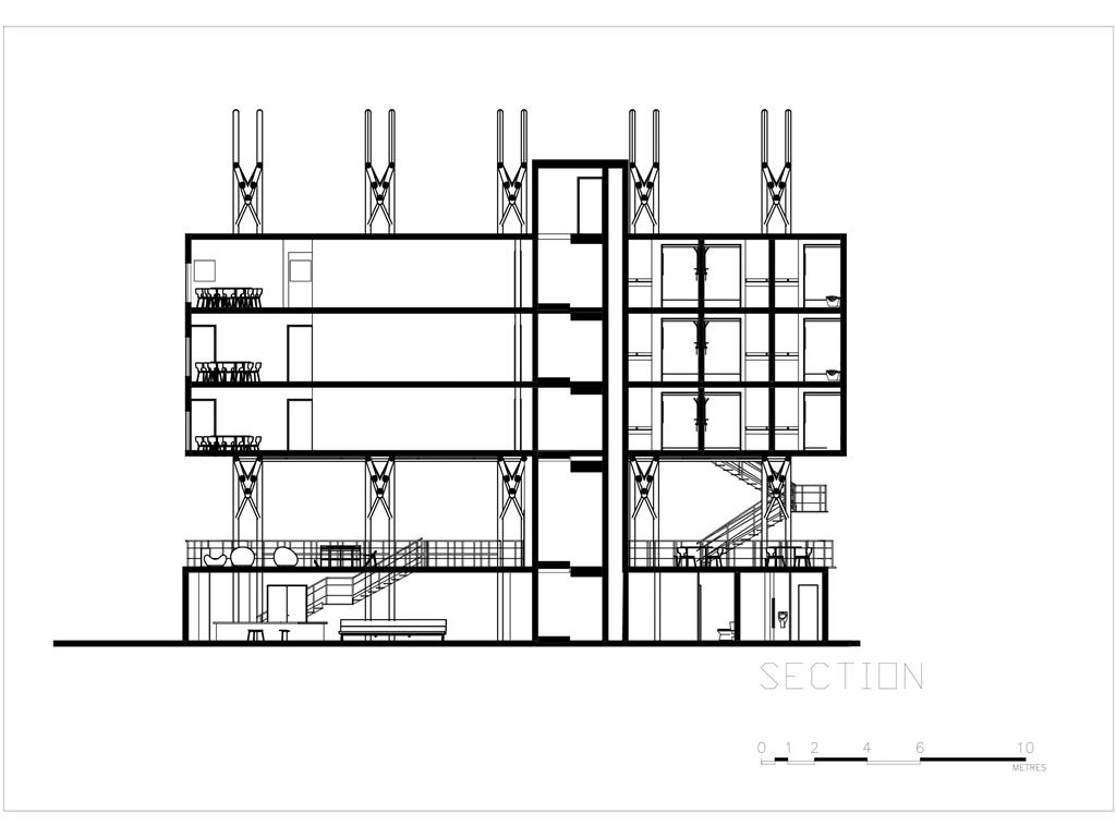
在結構上,桁架結構撐起旅館量體,讓底部成為開放活動空間,量體則成為底層公共空間的遮蔭。結構密度則延續原有尺度,以5公尺為單位等距分布,讓騎樓空間能被延續,基地面轉角側被打開。
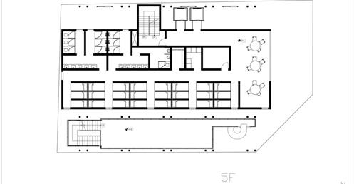
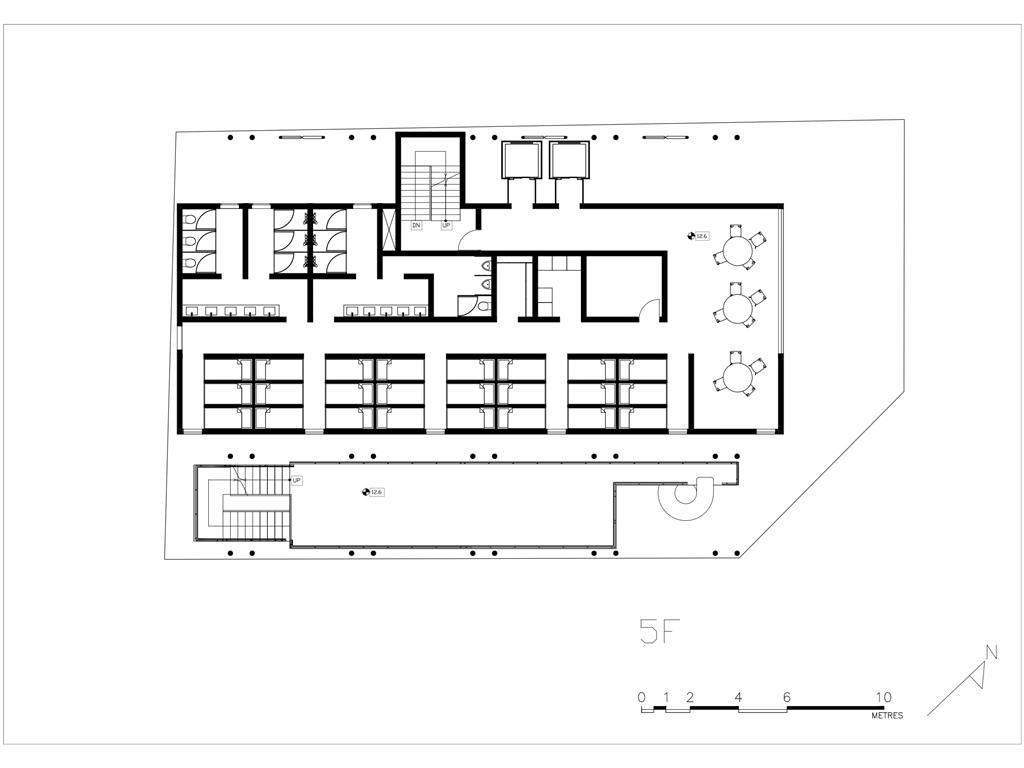
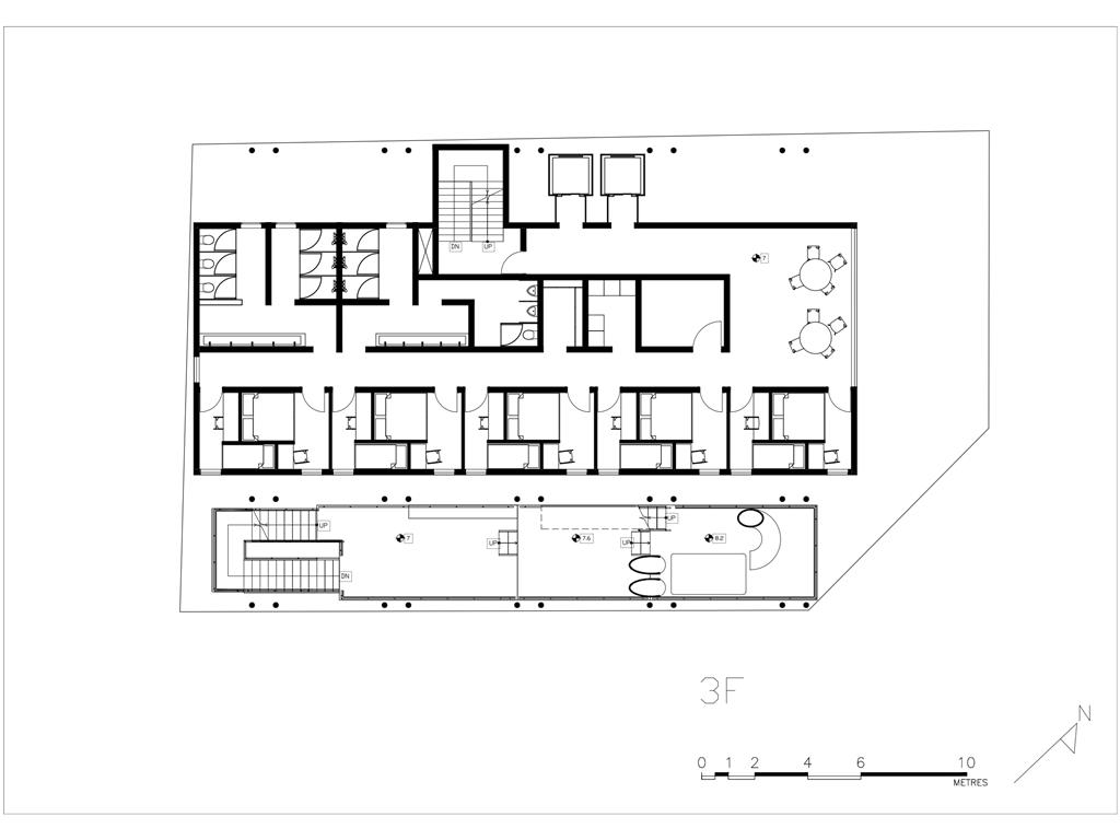
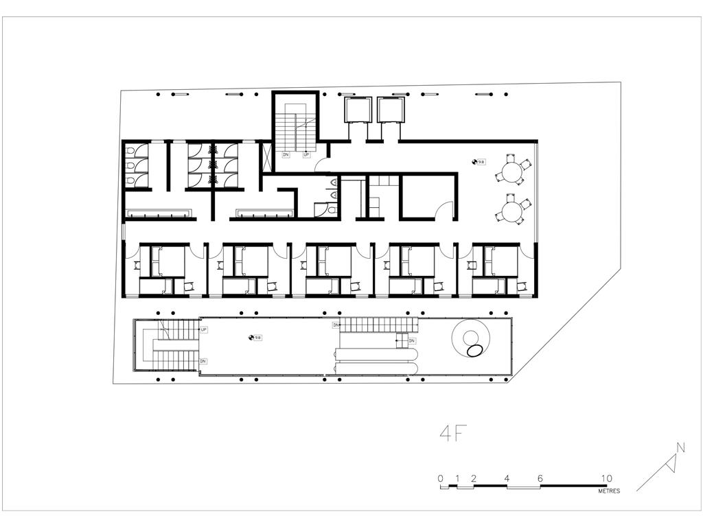
房間單元則分為三種,分別為單人房、雙人房與膠囊房,三、四樓以單人房、雙人房為主,而五樓則為膠囊床位,以5公尺為單位構成。
設計者:賴旻彥/ 東海大學建築系
作品時間:2019年大四作品
指導老師:賴人碩老師
第1回 楊瑞禎建築師紀念設計獎 參加作品編號032
設計說明
基地位於台中市中區成功路、市府路交叉口,鄰近台中火車站與台中公園。中區為台中市早期發展的地區,但這二三十年間商業活動逐漸沒落。中區經由日治時期都市規畫,街區呈現棋盤式構成,而道路組織是由大條雙向道與小單行道構成,街區因道路層級的切分,影響了街區內的步行感官經驗。
在中區內,街廓空間幾乎都被房屋完全佔去,而空地僅剩街區內的剩餘空間,少有大型公共空間讓人聚集,而騎樓空間就變為居民日常生活重要的交流空間,騎樓沿街面成為居民生活重要的公共空間與對外界面。
關於2029中城客棧,我希望這塊角地會成為對都市中的聚會場所,因此我置入的program為戶外電影院,讓旅客與居民能藉由電影交流。
在量體操作上,因中區周遭街廓被房屋佔據,我讓旅館的主量體抬升,將一樓空間開放成為戶外電影院,讓街廓轉角公共性打開,電影成為吸引周遭居民聚集的方式,而機能與服務空間(廁所、逃生梯、電梯)則擺往基地西北側,較不影響底層對外活動空間,東南側則完前開放為居民活動空間。
另外,我希望原有騎樓公共活動立體化,讓騎樓活動動空間被向上抬升,所以在二、三樓設立溜滑梯,成為旅館對外界面。
在結構上,桁架結構撐起旅館量體,讓底部成為開放活動空間,量體則成為底層公共空間的遮蔭。結構密度則延續原有尺度,以5公尺為單位等距分布,讓騎樓空間能被延續,基地面轉角側被打開。
房間單元則分為三種,分別為單人房、雙人房與膠囊房,三、四樓以單人房、雙人房為主,而五樓則為膠囊床位,以5公尺為單位構成。





















































