Vertical Life
設計者:傅鈺崴/ 東海大學/ 建築研究所學士後組
作品時間: 2018.11.19 – 2019.01.03 三年級作品
指導老師姓名: 張景堯
第1回 楊瑞禎建築師紀念設計獎 參加作品編號002
設計說明
過去數十年間,激烈的人口成長與社會結構變化,促使亞洲的巨型樓群不斷被製造出來,如此大量的均質製造,嚴重地侷限各個住宅的自主性。高層集合住宅的主要課題為垂直交通所帶來的疏離感以及可能的治安死角,如何營造一個富有人文關懷的垂直聚落,是本次設計主要探討的課題。
VERTICAL LIFE,垂直化的生活。這次設計期望打破過去高層住宅中每一層空間因樓板切割而斷開的居住關係,其不但使空間連續性被阻隔;也阻隔居民彼此間互動的可能。因此在操作概念的抽象性上企圖改變重力的方向,創造一超現實的垂直生活牆面,讓居民能於牆上自由地移動、交流,並且重新面對都市,把居住的自由還給居民,也重新定義高層集合住宅的集體居住方式。
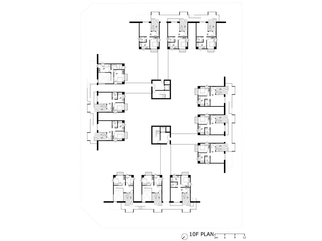
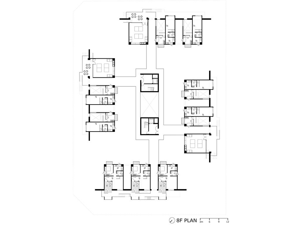
[ 量體配置 ]
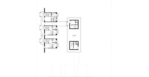
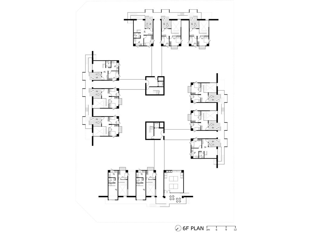
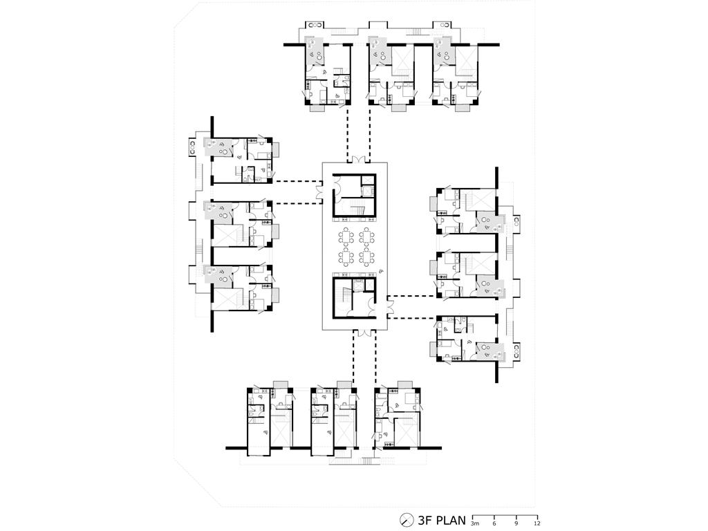
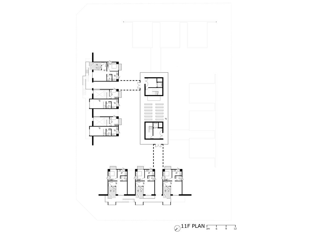
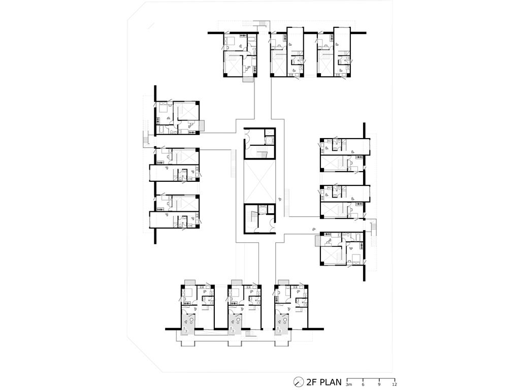
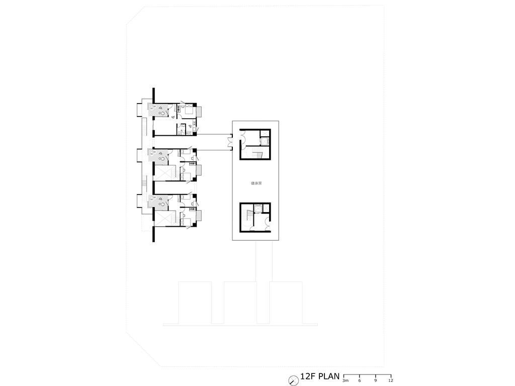
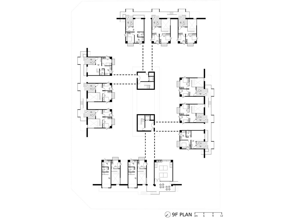
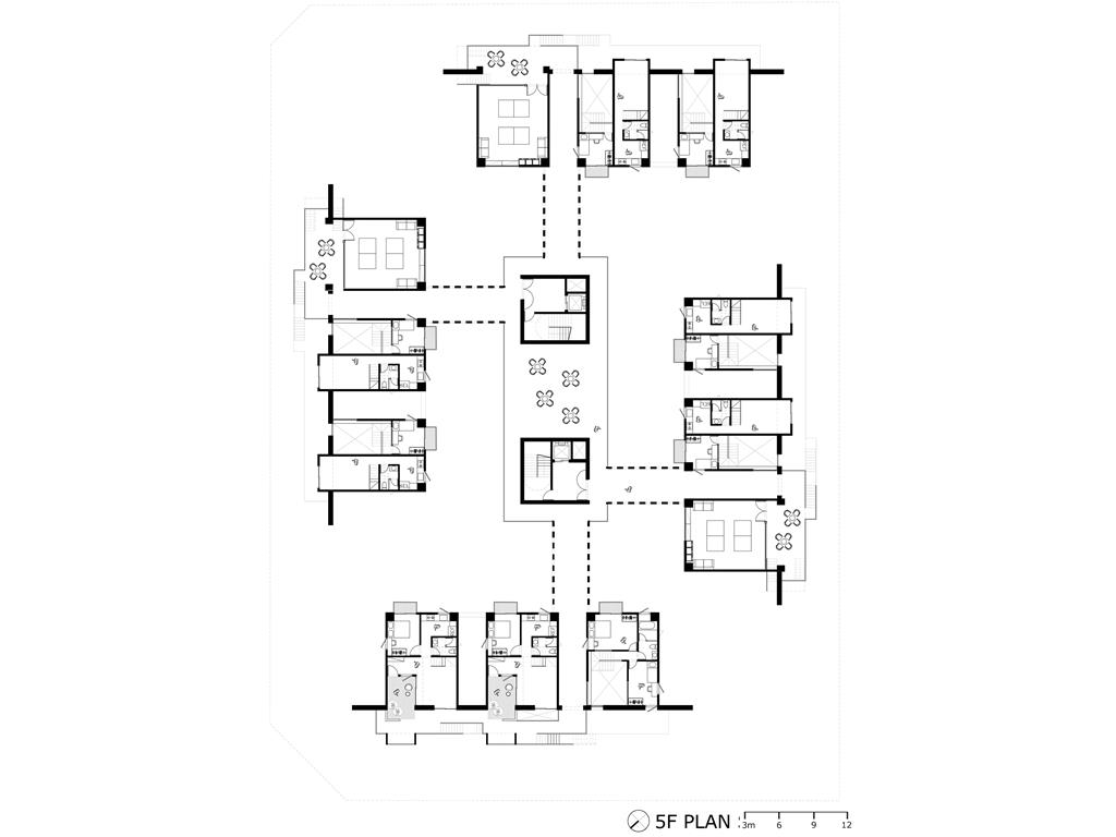
因應基地、住戶數量、公共空間需求與維持配置效率,將量體分成四個部分並向外邊靠,服務盒與公共空間置於中央。秩序上居民的公共空間向內共同所有,由中央服務盒串起;外側則是生活面的垂直村落,讓生活重新面對都市。
[ 住宅單元 ]
住宅單元設計上讓每一戶的空間感向上、向外延伸,彼此脫開獨立,增加各房間通風、採光的面積。將臥室、廚房與廁所等較私密的空間向內,挑高的客廳則對外延伸到庭院與垂直化的街道相連,讓生活的空間不再被限制於屋內,向上延伸空間感;向外則增加與鄰居互動的可能。
[ 中央服務盒 ]
梯間作為承重結構,如兩支大柱子配置於基地中央,維持到達每一單元的效率。同時串聯起每一層不同機能的公共空間,凸顯出其將水平空間分割的狀態與垂直性的運送功能。
[ 超現實的牆 ]
45公分厚的大牆作為承重結構,概念上界定出居民的日常生活。從各戶的客廳-前院-垂直化街道-擴張網-外陽臺-都市,營造對外的空間層次,居民將生活於牆上,就如生活在街道上般,能夠輕易與鄰居交流,並且面對都市。
[ 牆上的生活 ]
垂直面上藉由樓梯彼此自由地相連接,擴張網則在垂直街道上給帶給居民安全感,立面上如薄紗輕蓋;外陽台將庭院空間延伸到街道的另一端;居民的生活將於牆面上流動,重新向都市塑造生活的模樣。
設計者:傅鈺崴/ 東海大學/ 建築研究所學士後組
作品時間: 2018.11.19 – 2019.01.03 三年級作品
指導老師姓名: 張景堯
第1回 楊瑞禎建築師紀念設計獎 參加作品編號002
設計說明
過去數十年間,激烈的人口成長與社會結構變化,促使亞洲的巨型樓群不斷被製造出來,如此大量的均質製造,嚴重地侷限各個住宅的自主性。高層集合住宅的主要課題為垂直交通所帶來的疏離感以及可能的治安死角,如何營造一個富有人文關懷的垂直聚落,是本次設計主要探討的課題。
VERTICAL LIFE,垂直化的生活。這次設計期望打破過去高層住宅中每一層空間因樓板切割而斷開的居住關係,其不但使空間連續性被阻隔;也阻隔居民彼此間互動的可能。因此在操作概念的抽象性上企圖改變重力的方向,創造一超現實的垂直生活牆面,讓居民能於牆上自由地移動、交流,並且重新面對都市,把居住的自由還給居民,也重新定義高層集合住宅的集體居住方式。
[ 量體配置 ]
因應基地、住戶數量、公共空間需求與維持配置效率,將量體分成四個部分並向外邊靠,服務盒與公共空間置於中央。秩序上居民的公共空間向內共同所有,由中央服務盒串起;外側則是生活面的垂直村落,讓生活重新面對都市。
[ 住宅單元 ]
住宅單元設計上讓每一戶的空間感向上、向外延伸,彼此脫開獨立,增加各房間通風、採光的面積。將臥室、廚房與廁所等較私密的空間向內,挑高的客廳則對外延伸到庭院與垂直化的街道相連,讓生活的空間不再被限制於屋內,向上延伸空間感;向外則增加與鄰居互動的可能。
[ 中央服務盒 ]
梯間作為承重結構,如兩支大柱子配置於基地中央,維持到達每一單元的效率。同時串聯起每一層不同機能的公共空間,凸顯出其將水平空間分割的狀態與垂直性的運送功能。
[ 超現實的牆 ]
45公分厚的大牆作為承重結構,概念上界定出居民的日常生活。從各戶的客廳-前院-垂直化街道-擴張網-外陽臺-都市,營造對外的空間層次,居民將生活於牆上,就如生活在街道上般,能夠輕易與鄰居交流,並且面對都市。
[ 牆上的生活 ]
垂直面上藉由樓梯彼此自由地相連接,擴張網則在垂直街道上給帶給居民安全感,立面上如薄紗輕蓋;外陽台將庭院空間延伸到街道的另一端;居民的生活將於牆面上流動,重新向都市塑造生活的模樣。



































































