頂坡角一四五號 樂生療養院的再生與活化
Urban Healing Field
詹崴傑
2019中國文化大學環境設計學院建築與都市設計學系
指導老師:陳怡成、王中胤
基地地址:桃園市龜山區樂生療養院
類 別:醫療/住宅
作品簡介
空間記憶可以讓地方歷史以建築物的形式傳承下去,更創造出以當地文化為基礎的新氣象,然而在保存這些珍貴記憶同時,我們不能忽略環境已經改變的事實。心理療育場是一種手段,一個可以延續樂生生命的機會。除了保障原居民可以在園區度過安穩且有人陪伴的晚年之外,也創造病患、參訪者與樂生院民的新關係。
設計理念
活化舊區,往往會改變原居民的生活方式,該如何在保存與發展中達到一個平衡?
建築再生的課題就跟人類的文化一樣,傳承與創新總是充滿衝突,卻又密不可分。對於舊建築始終要抱著尊重的態度,但又不能被困在在歷史之中。
每一個動作都必須謹慎的考慮所代表的意義與影響,才能在保存記憶與永續發展中達到平衡,才能擁有一個有深度與層次的城市。
從路徑、樹木、保存、弱勢與記憶五個主題來探討樂生療養院目前所面臨的問題,進而帶入心理疾病療程中的活動治療與環境治療的發展,以及治療場所需要的空間條件,在這些條件下,討論新進功能與樂生居民及建築結合的可能性與未來。
而題目中所定義的治療行為是由建築環境來提供,而不是植入一個醫療機能盒來達成實質上的醫療目的。對於許多隱性的心理疾病患者來說,機構的場所感會讓人卻步,所以在這裡在建造一棟醫療機構是沒有任何意義的。
我想建構的是一個真正由建築提供心理治療的過程,也可以說這個園區應該是一個讓人願意去面對自己心理問題的起始點。
此基地未來意象的概念,依附於原來建築物之外,創造出通道、平台與增建建築,帶入外來使用者,讓居民願意去嘗試加入他們。在這裡心理治療場所不只是一個被置入的新功能,而是一個可以延續樂生生命的機會。除了保障原居民可以在園區度過安穩且有人陪伴的晚年之外,也創造病患、參訪者與院民之間的互動,讓彼此在此達到療育的效果。
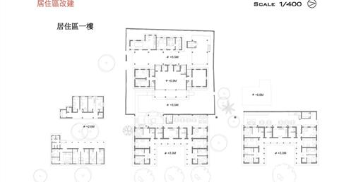
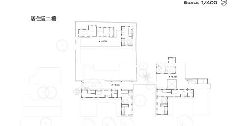
全區表現法: 圖中紅色部分為增建、改建及新增的部分。藍色為天橋及平台,連接不同功能與高度,讓園區內的體驗變為三種,分別為地面層,原樂生的動線,為訪客來此遊覽樂生歷史、空間氣氛、居民的生活文化。
以及樹木植栽所產生的森林步道,最後則是透過這些天橋及平台可以更近距離的接觸樹木,遊覽樂生全景,創造出相對於地面的熱鬧,較為靜止的空間,不同的氣氛,也連接不同功能的建築,讓患者在治療的過程可以不受打擾,也不打擾居民以及逛展的訪客。
透過材質及結構的不同來呈現,一樓保留原本加強磚造的牆面,拿掉年久失修的鐵皮及瓦片屋頂,透過si乾式工法加高整體二樓的高度,也解決二樓管線的配置問題,讓增建的部分使用較輕的木構造,可以讓來者可以一眼就區分原建築與新建築,就如同我的概念,在乘載著原本的記憶前提,保存著建築本身,並賦予能夠合乎當下所需的功能,才能在保存記憶與永續發展中達到平衡,才能擁有一個有深度與層次的城市。
在這憂鬱症與老人人口比例日漸增加的社會,療育環境的設立不再單單只被少數族群與年紀需要,關於神經醫療空間等等的討論也逐漸增加。
而我在做這次的設計中我認為療育環境需要有一個目的性,透過環境目標來達到一個療育的實質效果,且療育環境不是單一的,不單只是建築設計的環境關係,或是社工照顧等等…應是全體各方面來營造達成一個療育效果的環境。
Urban Healing Field
詹崴傑
2019中國文化大學環境設計學院建築與都市設計學系
指導老師:陳怡成、王中胤
基地地址:桃園市龜山區樂生療養院
類 別:醫療/住宅
作品簡介
空間記憶可以讓地方歷史以建築物的形式傳承下去,更創造出以當地文化為基礎的新氣象,然而在保存這些珍貴記憶同時,我們不能忽略環境已經改變的事實。心理療育場是一種手段,一個可以延續樂生生命的機會。除了保障原居民可以在園區度過安穩且有人陪伴的晚年之外,也創造病患、參訪者與樂生院民的新關係。
設計理念
活化舊區,往往會改變原居民的生活方式,該如何在保存與發展中達到一個平衡?
建築再生的課題就跟人類的文化一樣,傳承與創新總是充滿衝突,卻又密不可分。對於舊建築始終要抱著尊重的態度,但又不能被困在在歷史之中。
每一個動作都必須謹慎的考慮所代表的意義與影響,才能在保存記憶與永續發展中達到平衡,才能擁有一個有深度與層次的城市。
從路徑、樹木、保存、弱勢與記憶五個主題來探討樂生療養院目前所面臨的問題,進而帶入心理疾病療程中的活動治療與環境治療的發展,以及治療場所需要的空間條件,在這些條件下,討論新進功能與樂生居民及建築結合的可能性與未來。
而題目中所定義的治療行為是由建築環境來提供,而不是植入一個醫療機能盒來達成實質上的醫療目的。對於許多隱性的心理疾病患者來說,機構的場所感會讓人卻步,所以在這裡在建造一棟醫療機構是沒有任何意義的。
我想建構的是一個真正由建築提供心理治療的過程,也可以說這個園區應該是一個讓人願意去面對自己心理問題的起始點。
此基地未來意象的概念,依附於原來建築物之外,創造出通道、平台與增建建築,帶入外來使用者,讓居民願意去嘗試加入他們。在這裡心理治療場所不只是一個被置入的新功能,而是一個可以延續樂生生命的機會。除了保障原居民可以在園區度過安穩且有人陪伴的晚年之外,也創造病患、參訪者與院民之間的互動,讓彼此在此達到療育的效果。
全區表現法: 圖中紅色部分為增建、改建及新增的部分。藍色為天橋及平台,連接不同功能與高度,讓園區內的體驗變為三種,分別為地面層,原樂生的動線,為訪客來此遊覽樂生歷史、空間氣氛、居民的生活文化。
以及樹木植栽所產生的森林步道,最後則是透過這些天橋及平台可以更近距離的接觸樹木,遊覽樂生全景,創造出相對於地面的熱鬧,較為靜止的空間,不同的氣氛,也連接不同功能的建築,讓患者在治療的過程可以不受打擾,也不打擾居民以及逛展的訪客。
透過材質及結構的不同來呈現,一樓保留原本加強磚造的牆面,拿掉年久失修的鐵皮及瓦片屋頂,透過si乾式工法加高整體二樓的高度,也解決二樓管線的配置問題,讓增建的部分使用較輕的木構造,可以讓來者可以一眼就區分原建築與新建築,就如同我的概念,在乘載著原本的記憶前提,保存著建築本身,並賦予能夠合乎當下所需的功能,才能在保存記憶與永續發展中達到平衡,才能擁有一個有深度與層次的城市。
在這憂鬱症與老人人口比例日漸增加的社會,療育環境的設立不再單單只被少數族群與年紀需要,關於神經醫療空間等等的討論也逐漸增加。
而我在做這次的設計中我認為療育環境需要有一個目的性,透過環境目標來達到一個療育的實質效果,且療育環境不是單一的,不單只是建築設計的環境關係,或是社工照顧等等…應是全體各方面來營造達成一個療育效果的環境。



















































































