躍動的山岳
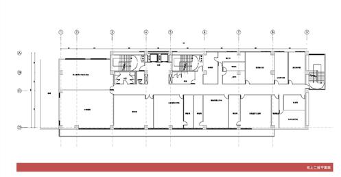
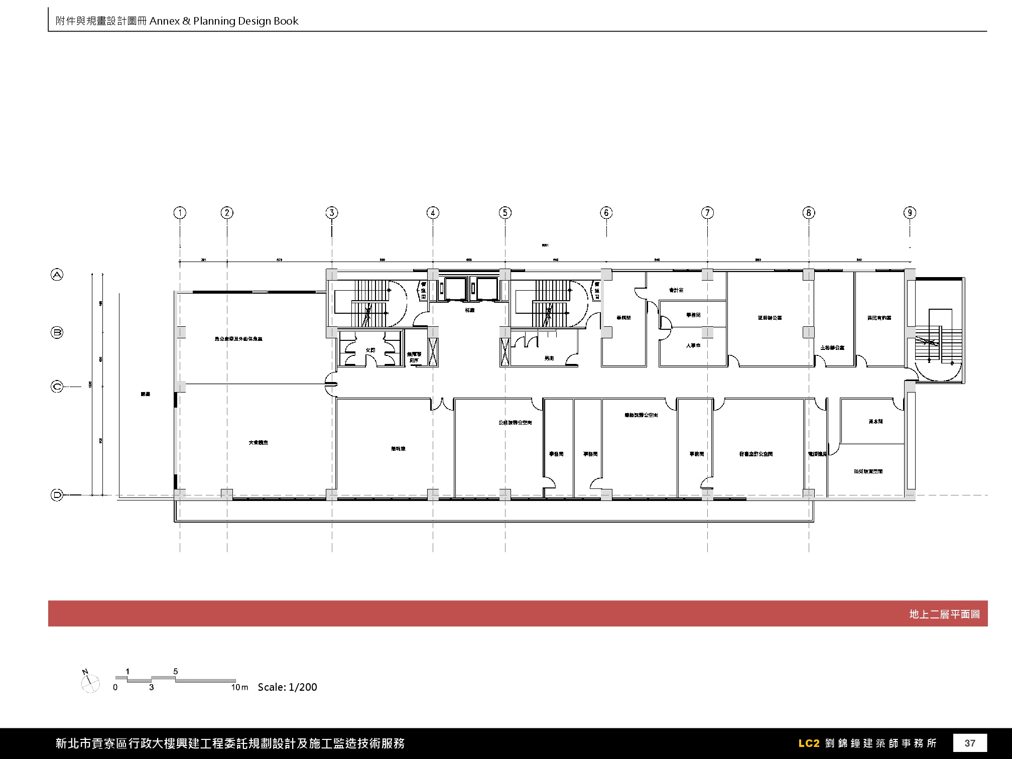
新北市貢寮區行政大樓委託設計監造案
2018年10月 競圖第2名
劉錦鐘建築師事務所
躍動的山岳-東北角再活化據點
以國家公共設施帶動土地活化,發展地方多元生活
建築構想
貢寮近代最常讓人提起的是海岸,總是讓人有休憩遊玩感受的區域,因此有一部份也是觀光的市區,整個台灣寸土寸金,如何把行政大樓融入大面積公園及舊使用土地再利用,豎立在公園中的行政大樓不只是為了洽公辦公,也是一座公共藝術地標,吸引遊客停留休憩,亦可做為新的政府機關典範,讓人感受到土地的複合式利用,讓人民有所感受新的行政大樓賦予的機能。
設計概念
貢寮古名摃仔寮,「摃仔」是臺灣北部的凱達格蘭巴賽語「Kona」的漢譯,原意係捕捉野獸的「陷阱」,而為了等候捕捉山獸,在陷阱附近搭建的草寮,就稱「摃仔寮」。
利用古名的概念延伸至本案立面造型設計,採取幾項元素進而轉換成設計手法。
草寮示意圖
草寮的機能為有遮風蔽雨功能的蓋板屋頂等,取「版」的概念,其結構支撐的材料為木柱子,取「條狀」概念,另屋頂材質為乾草取「自然」概念。
[ About ]
本所由劉錦鐘建築師擔任事務所主持人,為一具有活力、創新、韌性的專業團隊。事務所業務範圍以建築規劃設計監造、景觀及室內設計為主之案件類型,亦配合國內土木、結構、機電、消防與空調等以及國外知名的顧問團隊,提升精進專業彼此的專業水平,集思廣益,替每位業主提供最優良的建築設計服務工程。同時,亦以解決少子化與高齡化等社會問題為職志,務求創造更永續、友善、優質的都市環境,強調結合未來趨勢軟體BIM等資訊化系統,以更有效率、更精準的執行,並傳承先輩智慧、承先啟後,讓本工作團隊開業之初屢獲業主信任,相信有能力所委託之目標。
主持建築師對老人照護與行動不便環境的相關設計議題有專業的研究,同時,對於鄰里互動行為模式的研究也相當深入,且在社會公益團體裡亦極力提倡無障礙環境能落實到日常生活的空間設計哲學,逐漸提高的台灣社會帶來更好的建築環境;專案計畫執行之設計總監、設計部經理經理及總工程師皆具相當公共工程執行經驗,参與及執行過之公共工程採購案之工程價金達數十億以上,亦同時具有建築、室內、工程監造、PCM以及BIM建築資訊化建構系統之相關專長。
本所內部建築專業工作人員涉及各設計領域層面,包含[建築.室內.景觀設計與監造人員,工作資歷平均約為10至13年左右,具有高度建築智慧化與高齡者環境建構之專業設計團隊,同時對於室內設計及其相關建更使用、室內裝修等政府管理法令亦有相當的經驗,相信能為本裝修案帶來專業、合法、安全的執行成果。
新北市貢寮區行政大樓委託設計監造案
2018年10月 競圖第2名
劉錦鐘建築師事務所
躍動的山岳-東北角再活化據點
以國家公共設施帶動土地活化,發展地方多元生活
建築構想
貢寮近代最常讓人提起的是海岸,總是讓人有休憩遊玩感受的區域,因此有一部份也是觀光的市區,整個台灣寸土寸金,如何把行政大樓融入大面積公園及舊使用土地再利用,豎立在公園中的行政大樓不只是為了洽公辦公,也是一座公共藝術地標,吸引遊客停留休憩,亦可做為新的政府機關典範,讓人感受到土地的複合式利用,讓人民有所感受新的行政大樓賦予的機能。
設計概念
貢寮古名摃仔寮,「摃仔」是臺灣北部的凱達格蘭巴賽語「Kona」的漢譯,原意係捕捉野獸的「陷阱」,而為了等候捕捉山獸,在陷阱附近搭建的草寮,就稱「摃仔寮」。
利用古名的概念延伸至本案立面造型設計,採取幾項元素進而轉換成設計手法。
草寮示意圖
草寮的機能為有遮風蔽雨功能的蓋板屋頂等,取「版」的概念,其結構支撐的材料為木柱子,取「條狀」概念,另屋頂材質為乾草取「自然」概念。
[ About ]
本所由劉錦鐘建築師擔任事務所主持人,為一具有活力、創新、韌性的專業團隊。事務所業務範圍以建築規劃設計監造、景觀及室內設計為主之案件類型,亦配合國內土木、結構、機電、消防與空調等以及國外知名的顧問團隊,提升精進專業彼此的專業水平,集思廣益,替每位業主提供最優良的建築設計服務工程。同時,亦以解決少子化與高齡化等社會問題為職志,務求創造更永續、友善、優質的都市環境,強調結合未來趨勢軟體BIM等資訊化系統,以更有效率、更精準的執行,並傳承先輩智慧、承先啟後,讓本工作團隊開業之初屢獲業主信任,相信有能力所委託之目標。
主持建築師對老人照護與行動不便環境的相關設計議題有專業的研究,同時,對於鄰里互動行為模式的研究也相當深入,且在社會公益團體裡亦極力提倡無障礙環境能落實到日常生活的空間設計哲學,逐漸提高的台灣社會帶來更好的建築環境;專案計畫執行之設計總監、設計部經理經理及總工程師皆具相當公共工程執行經驗,参與及執行過之公共工程採購案之工程價金達數十億以上,亦同時具有建築、室內、工程監造、PCM以及BIM建築資訊化建構系統之相關專長。
本所內部建築專業工作人員涉及各設計領域層面,包含[建築.室內.景觀設計與監造人員,工作資歷平均約為10至13年左右,具有高度建築智慧化與高齡者環境建構之專業設計團隊,同時對於室內設計及其相關建更使用、室內裝修等政府管理法令亦有相當的經驗,相信能為本裝修案帶來專業、合法、安全的執行成果。

































