Space microcosm
2017 Spring
Student: Chu Yu
2nd Studio work
NTUST Department of Architecture
 
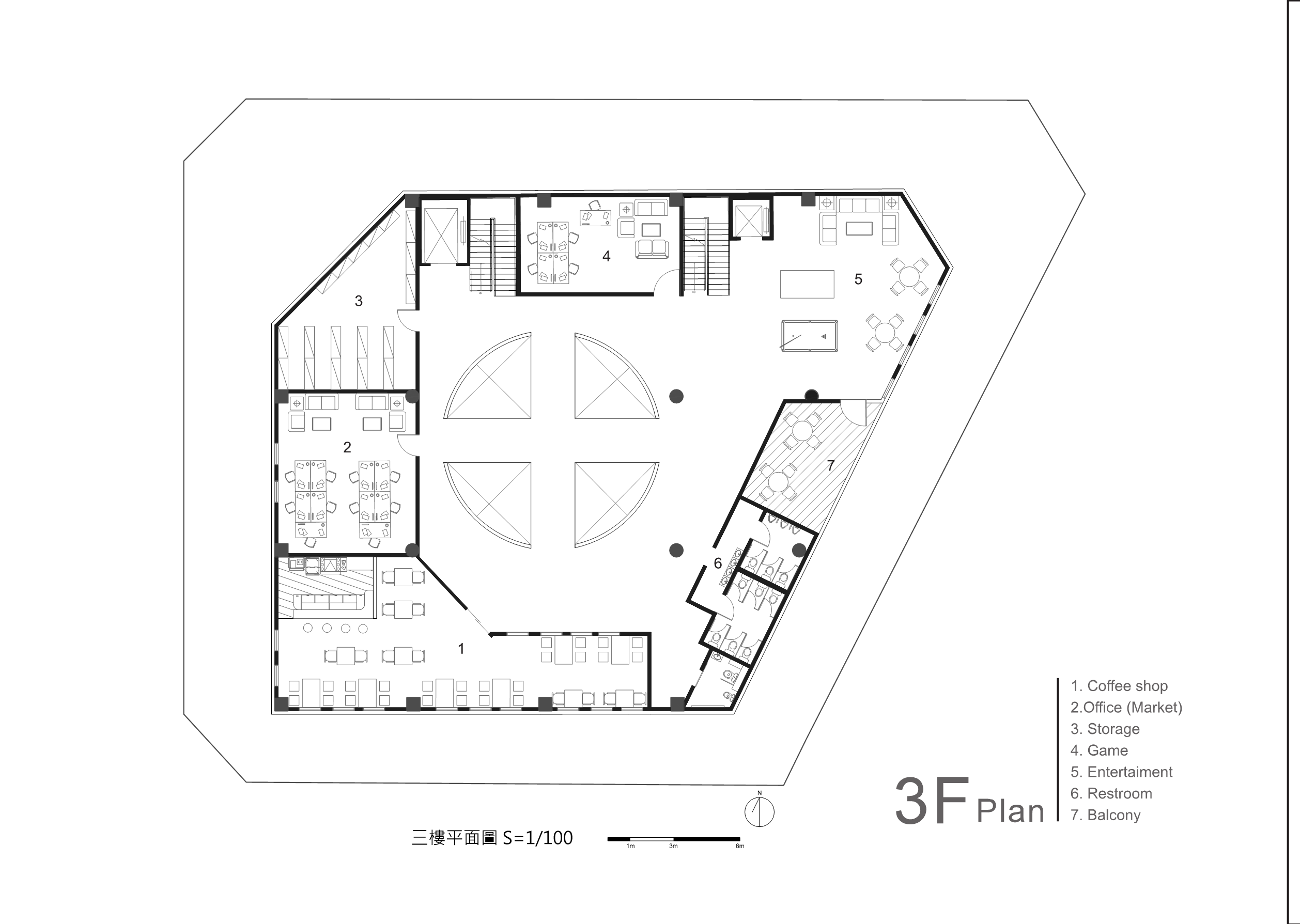
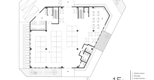
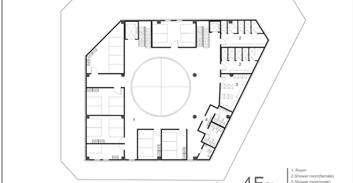
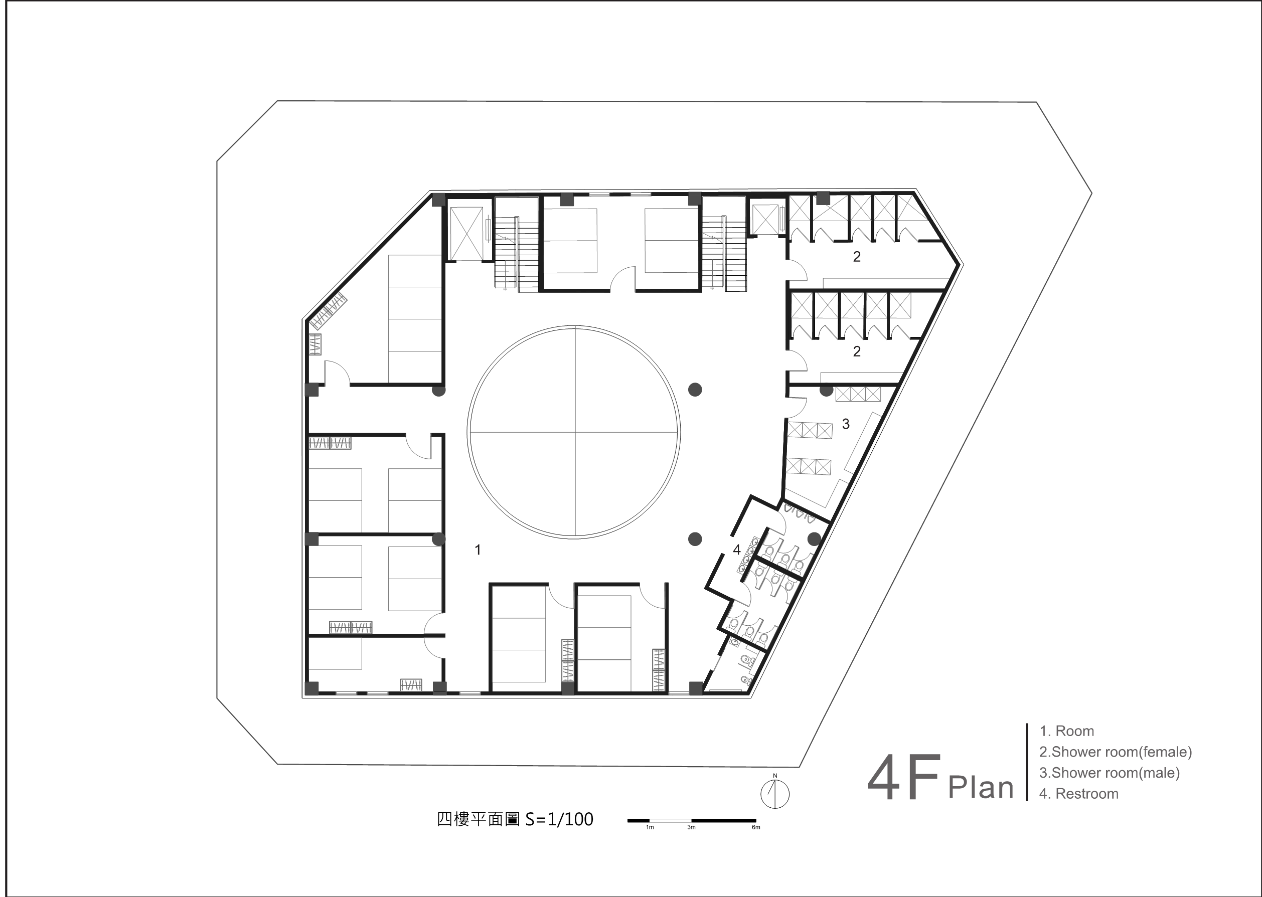
名稱:空間聚縮 Space microcosm
          光復市場feat. 青年旅館
2016 春季
學生:朱妤
台灣科技大學建築系
設計說明:
傳統市場的行為是台灣特有的文化特色,利用大挑空環繞整棟建築,帶入視線上與動線上的環繞,使外國旅客與當地居民能在此看似堅硬的量體裡,卻有通透的體驗,將來自不同國家,性質不同的人,聚縮在這個空間中。