All
建築師俱樂部
藝廊活動2025年
建築讀書會
第1回 楊瑞禎建築師紀念設計獎
展覽+新聞
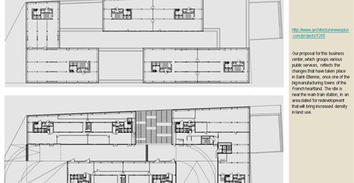
2010 法國聖艾蒂安辦公大樓 La Cite des Affaires, Saint-Etienne, France by Manuelle Gautrand
2010 法國聖艾蒂安辦公大樓
La Cite des Affaires, Saint-Etienne, France
by Manuelle Gautrand
→ 量體連續的辦公大樓﹔玻璃帷幕﹑大跨距﹑狹窄中庭﹔利用顏色﹑量體凹凸增減變化成一個連續建築體﹔
建築師俱樂部
藝廊活動2025年
建築讀書會
第1回 楊瑞禎建築師紀念設計獎
展覽+新聞