All
建築師俱樂部
藝廊活動2025年
建築讀書會
第1回 楊瑞禎建築師紀念設計獎
展覽+新聞
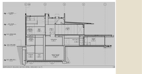
2012 美國亞洲協會德州中心大樓 / 谷口吉生 Asia Society Texas Center by Yoshio Taniguchi
2012
美國亞洲協會德州中心大樓
/
谷口吉生
Asia Society Texas Center
by Yoshio Taniguchi
建築師俱樂部
藝廊活動2025年
建築讀書會
第1回 楊瑞禎建築師紀念設計獎
展覽+新聞