All
建築師俱樂部
藝廊活動2025年
建築讀書會
第1回 楊瑞禎建築師紀念設計獎
展覽+新聞
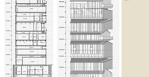
2012 東京淺草文化觀光中心 Asakusa Culture and Tourist Information Center by 隈研吾
2012
東京淺草文化觀光中心
Asakusa Culture and Tourist Information Center
by 隈研吾
→每坪造價約 NTD55萬
建築師俱樂部
藝廊活動2025年
建築讀書會
第1回 楊瑞禎建築師紀念設計獎
展覽+新聞