All
藝廊活動2026年
藝廊活動2025年
藝廊活動2024年
藝廊活動2023年
建築讀書會
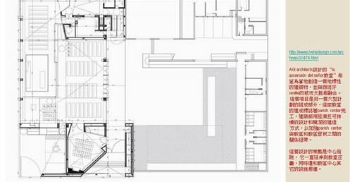
建築讀書會-西班牙教堂La Ascensión
建築讀書會-西班牙教堂
La Ascensión
藝廊活動2026年
藝廊活動2025年
藝廊活動2024年
藝廊活動2023年
建築讀書會