All
藝廊活動2026年
藝廊活動2025年
藝廊活動2024年
藝廊活動2023年
建築讀書會
建築讀書會-廣州W
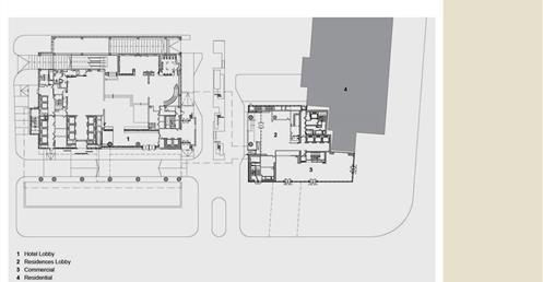
2013 中國廣州 W Hotel Guangzhou by Rocco Design Architects, Yabu Design, A.N.D.
→ 中國第一間W Hotel;建築物量體堆疊、脫開, 形成空間上的變化的活潑趣味;室內酒店設施空間挑高、材料跟顏色不停變化;地理位置-兼收並蓄、酒店設施-活力青春、客房設施-傳統創新;
藝廊活動2026年
藝廊活動2025年
藝廊活動2024年
藝廊活動2023年
建築讀書會