All
藝廊活動2026年
藝廊活動2025年
藝廊活動2024年
藝廊活動2023年
建築讀書會
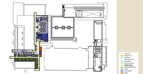
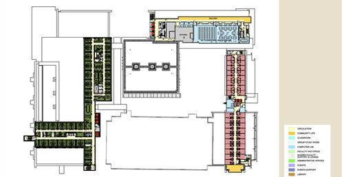
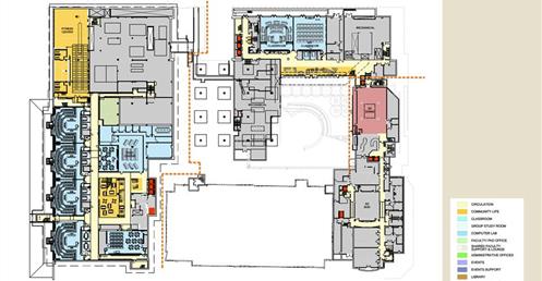
建築讀書會-密西根大學商學院
2008
美國密西根大學商學院
Stephen M. Ross School of Business, University of Michigan
by
KPF
藝廊活動2026年
藝廊活動2025年
藝廊活動2024年
藝廊活動2023年
建築讀書會