All
藝廊活動2026年
藝廊活動2025年
藝廊活動2024年
藝廊活動2023年
建築讀書會
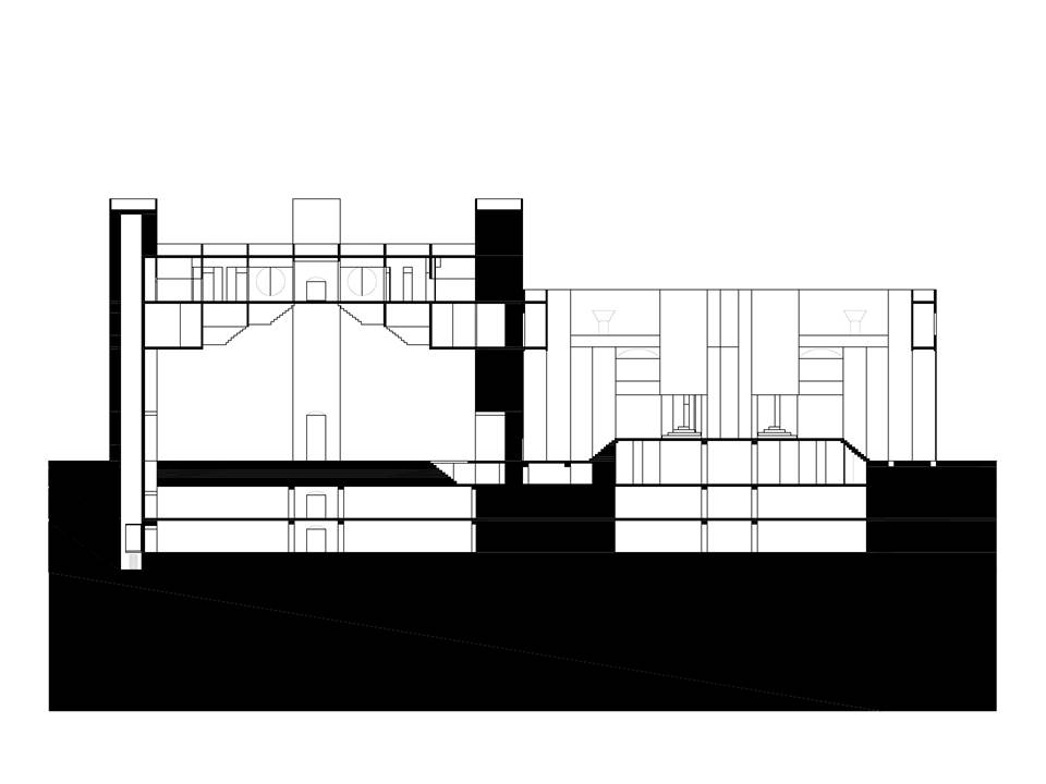
Design works 闕帝丞
闕帝丞
逢甲大學建築系
五年級
Department of Architecture
Feng Chia University
藝廊活動2026年
藝廊活動2025年
藝廊活動2024年
藝廊活動2023年
建築讀書會